06 67 84 39 15 Appelez de la part de Superimmo.com

Vos informations sont transmises directement à l'agence afin qu'elle traite votre demande. Voir notre charte des données personnelles.

Contacter par email
Description

Villa de luxe (122 m²), 4 chambres, 3 salles de bain, jacuzzi et piscine chauffée et jardin (1253 m²) à Caunes-Minervois (11160 - Aude)
Villa de luxe (anno 2008) avec piscine privée chauffée et jacuzzi avec vue imprenable depuis le balcon terrasse (33 m²) sur le village pittoresque de Caunes-Minervois et les vignobles jusqu'aux Pyrénées.
Rez-de-chaussée :
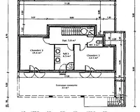
Par le porche (1.8 m²) vous entrez dans le hall (3.1 m²) avec accès à la buanderie (4 m²), la chambre 4 (7.7 m²) avec salle d'eau privée (3.4 m²) avec douche, wc et lavabo, à gauche vers la cuisine américaine (7.3 m²) et tout droit vers le salon (33 m²) avec les portes fenêtres donnant sur le balcon-terrasse. La terrasse de la cuisine (23 m²) est couverte et devant le salon se trouve une terrasse ensoleillée (10 m²). Un autre petit hall (0.9 m²) avec une toilette séparée (1.6 m²) et la chambre 1 (11.5 m²) avec salle d'eau privée (5.2 m²) avec douche et lavabo. La cuisine est équipée de toutes les commodités et de tous les luxes, comme une plaque vitrocéramique, un lave-vaisselle, un four combiné, un réfrigérateur et un congélateur. La buanderie dispose d'un espace pour le lave-linge et le sèche-linge.
Sous-sol:
Un escalier et un couloir (5.8 m²) mènent à deux chambres spacieuses (14.6 m², 12.5 m²) et à une salle d'eau (6.5 m²) équipée de deux lavabos et d'une douche. Toilette séparée (2 m²) et porte vers la chaufferie (1.3 m²) sous l'escalier. Les portes de jardin des deux chambres mènent à la terrasse couverte (33 m²).
A l'extérieur :
La piscine (9 x 4m) est équipée d'un escalier avec des banquettes immergées. La piscine et le jacuzzi sont entourés d'une clôture avec portillon d'accès. Autour de la piscine, des terrasses privées permettent de prendre des bains de soleil à l'abri du vent. Le jardin est entouré d'oliviers et d'arbustes. Possibilité de créer 2 places de parking, un carport ou un garage sur le terrain privé.
Divers :
L'ensemble de la maison est entièrement isolé et équipé de carrelage, de fenêtres et portes en PVC double vitrage. Gouttières en aluminium. ADSL disponible et fibre optique possible.
Les environs :
Caunes-Minervois est un beau village viticole tranquille avec une histoire riche. Caunes est connu pour son marbre avec lequel le château de Versailles à Paris a été construit. Le village avec son abbaye médiévale est accessible à pied et offre toutes les commodités et de belles terrasses. À quelques pas de la villa, vous trouverez une épicerie avec dépôt de pain, un supermarché Utile et, trois fois par semaine (di-do-za), un marché sympathique proposant toutes sortes de produits locaux frais. Carcassonne, Narbonne et le Canal du Midi font partie des excursions les plus agréables. Depuis Caunes-Minervois, vous traversez directement les gorges de la Montagne Noire, où vous pouvez également visiter quelques grottes. Vous pouvez faire de belles promenades à pied, car à moins de 100 mètres de la villa se trouvent plusieurs promenades circulaires dans la belle campagne.
Coûts :
Taxes Foncieres : € 1960 par an
« Les informations sur les risques auxquels ce bien est exposé sont disponibles sur le site Géorisques : www.georisques.gouv.fr »
AV TRANSACTION
Théodorus HARBERS
06 67 84 39 15
Votre agent commercial et conseiller(e) spécialiste en immobilier
RSAC N° 507 815 215 (EI)
Ville du greffe : Narbonne
Plus d'informations sur notre site av-transaction immo - Référence: 7501811313
Le réseau AV Transaction recrute des agents commerciaux dans toute la France. Percevez 100% de vos commissions. avtransaction-recrutement fr.
Honoraires charge vendeur.

Maj le 24/11/2025 - Réf. agence : 7501811313 - Réf Superimmo : ANVXTF5FE
Vous rencontrez un problème sur le site ?
Merci de nous signaler le problème
Caractérisques
Prix de vente : 439 000 €Prix au m² : 3 598 € / m²

Honoraires à la charge du vendeur. Barème d’honoraires : voir le barème

122 m² - 5 pièces - 4 chambres - ter. 1 253 m²Piscine
Orientation : SudTerrasse
Année de construction : 2009Chauffage électrique
Séjour de 33 m²3 salles d'eau
1 wc
Bilan énergétique Étiquette climat-énergie : D

Consommation d'énergie

Consommation
184 kWh/m².an
Logement très performantLogement extrêmement consommateur d'énergie

Émission de gaz à effet de serre

Peu d’émissions de CO2
A
B
C
D
E
F
G
5 kgeqCO2/m²/an
Émissions de CO2 très importante

Montant estimé des dépenses annuelles d’énergie pour un usage standard
Minimum : 1 380 € / an
Maximum : 1 890 € / an

Diagnostics réalisés le 21/11/2022.

Intéressez par ce type de bien ?
Pour recevoir par email les annonces similaires
CRÉER UNE ALERTE
Localisation
DEMANDER L’ADRESSE
Cette annonce vous est proposée par :
06 67 84 39 15 Appelez de la part de Superimmo.com

Vos informations sont transmises directement à l'agence afin qu'elle traite votre demande. Voir notre charte des données personnelles.

Autres recherches

toutes les maisons de 5 pièces à Caunes-Minervois