06 71 37 41 76 Appelez de la part de Superimmo.com

Vos informations sont transmises directement à l'agence afin qu'elle traite votre demande. Voir notre charte des données personnelles.

Contacter par email
Description

En vente locaux commerciaux et appartements dans la Zone d'Activité du Gourbenet à La Croix Valmer.
En Exclusivité.
Situé au cœur d’une zone d’activité dynamique du Golfe de Saint-Tropez, ce bâtiment de 10 pièces à usage commercial et résidentiel offre un excellent rendement locatif et un potentiel de valorisation supplémentaire.
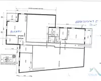
Sur une surface de terrain de 1058m2, ce bâtiment, en très bon état général, possède une surface bâtie totale de 1171m2 établie sur 3 niveaux avec une emprise au sol de 900m2.
Il se compose de plusieurs espaces commerciaux, des bureaux et 2 appartements. Actuellement tous les locaux sont loués, à l'exception de 2 bureaux d'une superficie de 70m2 chacun où des travaux sont à terminer.

Agencement des locaux :
- Au Sous-sol : 3 locaux + 1 garage - Au Rez-de-chaussée : 2 locaux, 1 local Bureaux, 1 Appartement T3 - 1er étage : 1 Appartement T4, 1 local de bureaux
Données financières :
- Revenu locatif estimé : 116040 € - Rentabilité brute estimée : 4,47% - Situation locative mixte (plusieurs locataires en place revenus immédiats)
Les + du Bien :
- Emplacement stratégique au sein d'une zone d'activité recherchée - Très bon état général du bâtiment - Mix Habitation/Commerce : diversification du revenu - Locaux avec potentiel d'aménagement supplémentaire - Rendement locatif attractif dans une région à forte demande.
Opportunité rare à saisir
Idéal investisseur ou professionnel souhaitant conjuguer emplacement et rentabilité.
Dossier complet sur demande.
Pour tout renseignement ou visite contactez Jonathan Gillard au 06 71 37 41 76
'Les informations sur les risques auxquels ce bien est exposé sont disponibles sur le site Géorisques http://www.georisques.gouv.fr'
Agence L'Echappée Bleue Golfe de St Tropez - La Galiote - Avenue de la Plage - 83 310 Les Marines de Cogolin

Publiée le 19/11/2025 - maj le 22/11/2025 - Réf. agence : 3025 - Réf Superimmo : ANVXZWPS9
Vous rencontrez un problème sur le site ?
Merci de nous signaler le problème
Caractérisques
Prix de vente : 2 600 000 €Prix au m² : 2 220 € / m²

Honoraires à la charge de l'acquéreur : 4% TTC - 100 000 € TTC inclus dans le prix de vente.

1 171 m²1 Garage
1 balconAnnée de construction : 2006
Bilan énergétique

Consommation d'énergie (DPE)

Logement très performant
A
B
C
D
E
F
G
124 kWh/m²/an
Logement extrêmement consommateur d’énergie

Émission de gaz à effet de serre (GES)

Peu d’émissions de CO2
A
B
C
D
E
F
G
3 kgeqCO2/m²/an
Émissions de CO2 très importante

Diagnostics réalisés le 14/05/2019.

Intéressez par ce type de bien ?
Pour recevoir par email les annonces similaires
CRÉER UNE ALERTE
Localisation
DEMANDER L’ADRESSE
Cette annonce vous est proposée par :
48 avis clients
06 71 37 41 76 Appelez de la part de Superimmo.com

Vos informations sont transmises directement à l'agence afin qu'elle traite votre demande. Voir notre charte des données personnelles.