06 13 27 23 87 Appelez de la part de Superimmo.com

Vos informations sont transmises directement à l'agence afin qu'elle traite votre demande. Voir notre charte des données personnelles.

Contacter par email
Description

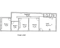
Métro Marcel Sembat, dans résidence de bon standing entiérement sur jardin au calme, proche des commerces et restaurants, local commercial d'une surface de 91m2 complétement modulable, 4 bureaux, salle de réunion, wc, cuisine. chauffage collectif, étanchéité toiture et ravalement 2024. chauffage collectif au gaz. gardien.

Publiée le 03/04/2025 - maj le 25/09/2025 - Réf. agence : - Réf Superimmo : ANVXY8M3E
Vous rencontrez un problème sur le site ?
Merci de nous signaler le problème
Caractérisques
Prix de vente : 614 250 €Prix au m² : 6 734 € / m²

Honoraires à la charge de l'acquéreur : 5% TTC - 29 250 € TTC inclus dans le prix de vente. Barème d’honoraires : voir le barème

91,21 m²Année de construction : 1960
Bilan énergétique Étiquette climat-énergie : E

Consommation d'énergie

Consommation
336 kWh/m².an
Logement très performantLogement extrêmement consommateur d'énergie

Émission de gaz à effet de serre

Peu d’émissions de CO2
A
B
C
D
E
F
G
157 kgeqCO2/m²/an
Émissions de CO2 très importante
Intéressez par ce type de bien ?
Pour recevoir par email les annonces similaires
CRÉER UNE ALERTE
Localisation
DEMANDER L’ADRESSE
Cette annonce vous est proposée par :
06 13 27 23 87 Appelez de la part de Superimmo.com

Vos informations sont transmises directement à l'agence afin qu'elle traite votre demande. Voir notre charte des données personnelles.