06 23 71 23 42 Appelez de la part de Superimmo.com

Vos informations sont transmises directement à l'agence afin qu'elle traite votre demande. Voir notre charte des données personnelles.

Contacter par email
Description

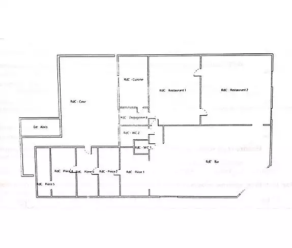
Vente de murs avec Terrasse, Emplacement Idéal
Situé dans un emplacement de premier choix à proximité de la gare SNCF, nous mettons en vente les murs ( 180m²) avec une autorisation de terrasse et un patio privatif de 75 m².
Opportunités de Développement
La partie restaurant, actuellement non exploitée, offre de belles perspectives pour le repreneur.
Les vastes surfaces disponibles et le patio permettent de multiples possibilités, incluant la mise en location grâce à une entrée indépendante.
Potentiel d'Aménagement
Il est également possible de créer un logement type T2 d'environ 35 m² avec une cour privative et une entrée indépendante pour l'occuper ou générer un revenu locatif.
Flexibilité et Possibilités
La configuration de cet établissement offre de nombreuses options pour le nouveau propriétaire, qu'il s'agisse d'une exploitation totale ou partielle en générant en plus du revenu locatif.
Pour plus de renseignements, veuillez nous contacter.

Maj le 03/12/2025 - Réf. agence : 84 - Réf Superimmo : ANVXWRA2R
Vous rencontrez un problème sur le site ?
Merci de nous signaler le problème
Caractérisques
Prix de vente : 440 000 €Prix au m² : 2 444 € / m²
Charges prévisionnelles : 550 € / an

Honoraires à la charge du vendeur. Barème d’honoraires : voir le barème

180 m² - 10 pièces - ter. 294 m²Cave
TerrasseClimatisation
3 wcInterphone
Bilan énergétique
Non soumis au DPE

Émission de gaz à effet de serre (GES)

Peu d’émissions de CO2
A
B
C
D
E
F
G
Émissions de CO2 très importante

Diagnostics réalisés le 23/08/2024.

Intéressez par ce type de bien ?
Pour recevoir par email les annonces similaires
CRÉER UNE ALERTE
Localisation
DEMANDER L’ADRESSE
Cette annonce vous est proposée par :
06 23 71 23 42 Appelez de la part de Superimmo.com

Vos informations sont transmises directement à l'agence afin qu'elle traite votre demande. Voir notre charte des données personnelles.