06 22 98 35 97 Appelez de la part de Superimmo.com

Vos informations sont transmises directement à l'agence afin qu'elle traite votre demande. Voir notre charte des données personnelles.

Contacter par email
Description

Idéalement située sur la route des Vins d'Alsace, entre Obernai et Sélestat, la ville de Barr vous séduira par ses nombreux atouts, notamment la proximité des établissements scolaires (de la maternelle au lycée), supermarchés, restaurants, médecins, pharmacie, médiathèque, associations sportives, etc.
La commune de BARR dispose de sa propre gare ferroviaire, permettant de relier facilement les principales villes alentours, de Strasbourg à Colmar, en passant par Sélestat. Vous pourrez rejoindre rapidement les axes autoroutiers principaux (A35). Cette construction neuve respecte la norme en vigueur RE2020.
Éligible Prêt à Taux Zéro (PTZ)
Frais de notaires réduits*
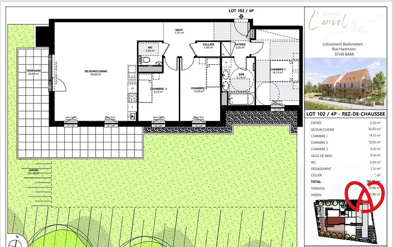
Nous vous proposons de découvrir dans la nouvelle Résidence 'L'Envol' cet appartement neuf F4 en rez-de-chaussée de 90,39m².
*Dans le neuf, les frais relatifs à l'établissement de l'acte de vente et des droits fiscaux s'élèvent entre 2 à 3 % du prix de vente (contre 7 à 8% dans l'ancien).
Le bien comprend :
- une entrée ;
- un séjour ouvert sur cuisine de plus de 35m² ;
- une chambre avec placard de plus de 14m² ;
- deux chambres de 10,59m² et 9,10m² ;
- une salle de bain ;
- un toilette séparé ;
- un cellier.
Une terrasse de 25,96m², un jardin de 332.03m² complètent le bien.
Possibilité d'acquérir une place de parking, un garage en sous-sol de 15,32m² et une cave.
Les prestations intérieures
Menuiseries bicolore
Portes laquées
Chauffage au sol
Peinture lisse
Choix exclusif de revêtements de sols
Volet roulant électrique
Placards
Les prestations extérieures
Espaces communs végétalisés
Jardins clôturés, engazonnés et arborés
Grandes terrasses
Stationnements intérieurs et extérieurs
Local à vélos
Caves
Pour tout renseignement :
Karen MONJAL
O6.22.98.35.97 ou O3.88.O8.91.O9
Agence Alsacienne Immobilier
4, Grand Rue 67140 BARR
D'autres biens disponibles dans la même Résidence :
Appartement au RDC 3 pièces - 64.01 m² - 249 990 €
Appartement au 1er étage 3 pièces - 64.01 m² - 244 900 €
Appartement au 1er étage 3 pièces - 66.52 m² - 259 900 €
Appartement au 1er étage 4 pièces - 90,39 m² - 353 900 €
Appartement au 2ème étage 3 pièces - 70,86 m² - 276 900 €
*Dans le neuf, les frais relatifs à l'établissement de l'acte de vente et des droits fiscaux s'élèvent entre 2 à 3 % du prix de vente (contre 7 à 8% dans l'ancien).
Dans une copropriété de 13 lots. Aucune procédure n'est en cours. Non soumis au DPE. Les informations sur les risques auxquels ce bien est exposé sont disponibles sur le site Géorisques : georisques.gouv.fr.
Retrouvez l'annonce de l'agence immobilière Alsacienne Immobilier Barr sur :

Maj le 08/12/2025 - Réf. agence : VA2048-VIGNOBLE - Réf Superimmo : ANVXVY1F1
Vous rencontrez un problème sur le site ?
Merci de nous signaler le problème
Caractérisques
Prix de vente : 353 900 € Prix en baissePrix au m² : 3 915 € / m²

Barème d’honoraires : voir le barème

90,39 m² - 4 pièces - 3 chambresRez-de-chaussée
Avec ascenseur1 garage - 1 parking
Cave1 terrasse
Chauffage au gazSéjour de 36 m²
1 salle de bainWc séparé - 1 wc
Copropriété de 13 lots
Bilan énergétique
Non soumis au DPE
Intéressez par ce type de bien ?
Pour recevoir par email les annonces similaires
CRÉER UNE ALERTE
Localisation
DEMANDER L’ADRESSE
Cette annonce vous est proposée par :
424 avis clients
06 22 98 35 97 Appelez de la part de Superimmo.com

Vos informations sont transmises directement à l'agence afin qu'elle traite votre demande. Voir notre charte des données personnelles.

Autres recherches

tous les appartements de 4 pièces à Barr