06 84 39 64 19 Appelez de la part de Superimmo.com

Vos informations sont transmises directement à l'agent afin qu’il traite votre demande.

Contacter par email
Description

iad France - Alexandre MERCERON vous propose: Appartement T4 Spacieux et Lumineux à Bretignolles-sur-Mer - Idéal Investissement ou Résidence Principale
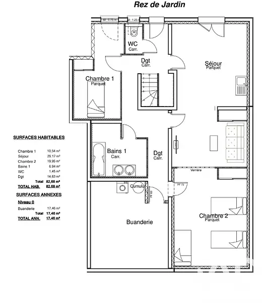
Situé à seulement 400 mètres de la plage de Bretignolles-sur-Mer, cet appartement T4 de 82,68m² vous offre un cadre de vie privilégié proche de la nature et des commodités. Parfait pour une résidence principale, une résidence secondaire ou un investissement locatif saisonnier, cet appartement rénové en 2023 vous séduira par ses prestations de qualité.
L'appartement se compose de 2 chambres spacieuses, d'une salle de bain moderne, d'une cuisine ouverte lumineuse à réaliser à votre gout et d'un espace buanderie très pratique. Chaque espace a été pensé pour offrir confort et fonctionnalité au quotidien.
L'ensemble des pièces bénéficie d'une exposition privilégiée, avec une orientation sud et ouest, offrant une luminosité naturelle tout au long de la journée. La conception en open-space apporte une sensation d'espace et de convivialité très appréciable.
Cet appartement est également équipé de fibres optiques, assurant une connexion internet ultra-rapide, idéale pour le télétravail ou les loisirs en ligne. De plus, le système de ventilation mécanique garantit une bonne qualité de l'air intérieur, essentielle pour le bien-être de ses occupants.
En termes de commodités, vous trouverez des restaurants et des commerces à seulement quelques minutes à pied, facilitant votre quotidien. De plus, la plage à proximité offre un cadre de vie exceptionnel pour les amateurs de bord de mer.
Une rénovation récente ainsi que des matériaux de qualité font de cet appartement un bien immobilier attractif et prêt à vivre. Une opportunité à ne pas manquer à Bretignolles-sur-Mer.
Contactez-nous dès aujourd'hui pour organiser une visite et découvrir ce havre de paix en bord de mer.
La presente annonce immobiliere vise 1 lot situé dans une copropriété de 2 lots au total et ne faisant l'objet d'aucune procédure en cours citée à l'article L. 721-1 du code de la construction et de l'habitation. Montant moyen mensuel de charges déclaré par le vendeur : 8.33€ par mois (soit 100 € annuel). Honoraires d'agence à la charge du vendeur.
Information d'affichage énergétique sur ce bien : classe ENERGIE D indice 191 et classe CLIMAT B indice 6. Les informations sur les risques auxquels ce bien est exposé, y compris l'obligation légale de débroussaillement, sont disponibles sur le site Géorisques : http://www.georisques.gouv.fr.
La présente annonce immobilière a été rédigée sous la responsabilité éditoriale de M Alexandre MERCERON mandataire indépendant en immobilier (sans détention de fonds), agent commercial de la SAS I@D France immatriculé au RSAC de roche sur yon sous le numéro 408083459, titulaire de la carte de démarchage immobilier pour le compte de la société I@D France SAS.

Publiée le 15/11/2025 - Réf. agence : 1889806 - Réf Superimmo : ANVXZW4WZ
Vous rencontrez un problème sur le site ?
Merci de nous signaler le problème
Caractérisques
Prix de vente : 199 000 €Prix au m² : 2 398 € / m²
Charges prévisionnelles : 100 € / an

Honoraires à la charge du vendeur. Barème d’honoraires : voir le barème

83 m² - 4 pièces - 2 chambres - ter. 326 m²Rez-de-chaussée
Année de construction : 2023Chauffage individuel électrique (radiateurs)
Cuisine ouverteCopropriété de 2 lots
Bilan énergétique Étiquette climat-énergie : D

Consommation d'énergie

Consommation
191 kWh/m².an
Logement très performantLogement extrêmement consommateur d'énergie

Émission de gaz à effet de serre

Peu d’émissions de CO2
A
B
C
D
E
F
G
6 kgeqCO2/m²/an
Émissions de CO2 très importante

Montant estimé des dépenses annuelles d’énergie pour un usage standard (année(s) de référence : 2021)
Minimum : 2 110 € / an
Maximum : 2 910 € / an

Diagnostics réalisés le 02/05/2023.

Intéressez par ce type de bien ?
Pour recevoir par email les annonces similaires
CRÉER UNE ALERTE
Localisation
DEMANDER L’ADRESSE
Cette annonce vous est proposée par :
06 84 39 64 19 Appelez de la part de Superimmo.com

Vos informations sont transmises directement à l'agent afin qu’il traite votre demande.

Autres recherches

tous les appartements de 4 pièces à Bretignolles-sur-Mer