04 81 91 43 88 Appelez de la part de Superimmo.com

Vos informations sont transmises directement à l'agence afin qu'elle traite votre demande. Voir notre charte des données personnelles.

Contacter par email
Description

EXCLUSIVITÉ - Appartement T4 à vendre au Carré Liberté, Pont-de-Chéruy
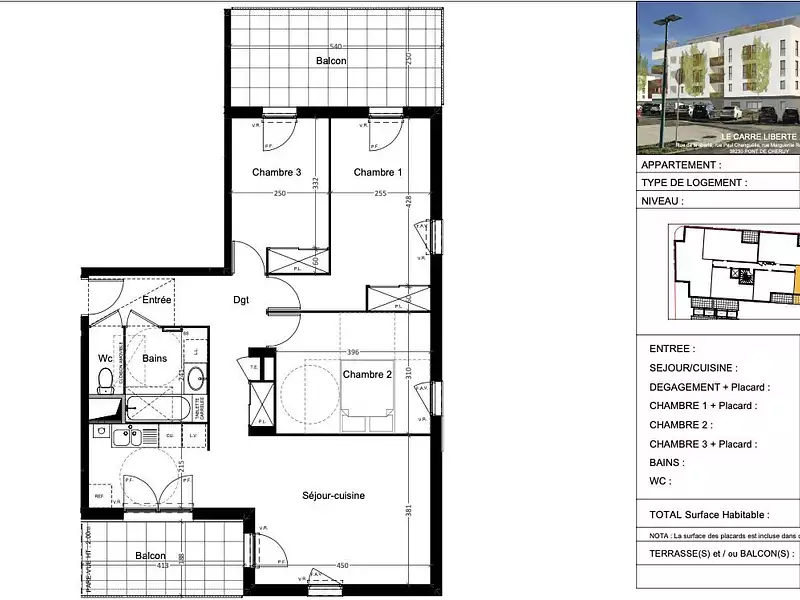
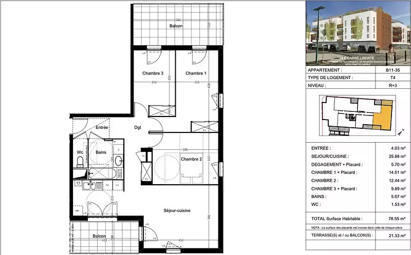
L'agence EVE IMMOBILIER PONT-DE-CHERUY est ravie de vous présenter cet appartement de type T4, idéalement situé au deuxième étage de la résidence Carré Liberté, dans un cadre calme et verdoyant.
Avec une surface habitable de 79,6 m², cet appartement offre une disposition optimisée et des prestations modernes pour un cadre de vie confortable et chaleureux.
En entrant, vous découvrirez un hall d'entrée fonctionnel avec placard intégré. Ce premier dégagement dessert une salle de bain moderne, un WC indépendant, ainsi qu'une première chambre spacieuse, idéale pour un espace invité ou un bureau. Cette chambre, en tant que suite parentale, dispose d'une salle d'eau privative avec douche et donne accès à un balcon partagé avec l'une des chambres du second dégagement.
Le séjour, lumineux et spacieux, est ouvert sur une cuisine moderne et équipée, formant un espace de vie convivial. Cet espace s'ouvre également sur un balcon privatif, parfait pour profiter des extérieurs et des parties communes verdoyantes de la résidence.
Un second dégagement mène à deux autres chambres confortables, dont l'une dispose d'un accès a un balcon privatif offrant un cadre idéal pour une famille. Vous retrouverez au total 3 balcons
Les prestations de cet appartement incluent des fenêtres en PVC double vitrage, assurant une isolation thermique et phonique de qualité. Le chauffage individuel au gaz par radiateurs et les volets roulants manuels garantissent un confort en toutes saisons.
La résidence Carré Liberté est conforme aux normes RT 2012, ce qui permet de réaliser des économies d'énergie. L'accès sécurisé se fait par visiophone et digicode, et la copropriété est entièrement équipée de la fibre optique pour une connexion internet rapide et performante. Un ascenseur est également disponible pour un accès facile à tous les étages.
Ne manquez pas cette opportunité exceptionnelle !
Honoraires à la charge du vendeur. Dans une copropriété de 336 lots. Aucune procédure n'est en cours. Classe énergie B, Classe climat B Montant moyen estimé des dépenses annuelles d'énergie pour un usage standard, établi à partir des prix de l'énergie de l'année 2024 : entre 390.00 et 580.00 €. Les informations sur les risques auxquels ce bien est exposé sont disponibles sur le site Géorisques : georisques.gouv.fr.
Votre conseiller EVE IMMOBILIER : Yonnis Torres
Agent commercial (Entreprise individuelle)
RSAC 989 352 166

Publiée le 24/07/2025 - maj le 06/08/2025 - Réf. agence : VA1930-SKIMMOBILIER38 - Réf Superimmo : ANVXZ4N5C
Vous rencontrez un problème sur le site ?
Merci de nous signaler le problème
Caractérisques
Prix de vente : 255 000 €Prix au m² : 3 204 € / m²
Charges prévisionnelles : 1 320 € / an

Honoraires à la charge du vendeur. Barème d’honoraires : voir le barème

79,6 m² - 4 pièces - 3 chambresÉtage 2/4 avec ascenseur
3 balcons (33 m²)Année de construction : 2021
Chauffage au gazCuisine ouverte
Séjour de 26 m²1 salle d'eau - 1 salle de bain
Wc séparé - 1 wcCopropriété de 336 lots
Bilan énergétique Étiquette climat-énergie : B

Consommation d'énergie

Consommation
54 kWh/m².an
Logement très performantLogement extrêmement consommateur d'énergie

Émission de gaz à effet de serre

Peu d’émissions de CO2
A
B
C
D
E
F
G
10 kgeqCO2/m²/an
Émissions de CO2 très importante

Montant estimé des dépenses annuelles d’énergie pour un usage standard (année(s) de référence : 2024)
Minimum : 390 € / an
Maximum : 580 € / an

Diagnostics réalisés le 12/06/2024.

Intéressez par ce type de bien ?
Pour recevoir par email les annonces similaires
CRÉER UNE ALERTE
Localisation
DEMANDER L’ADRESSE
Cette annonce vous est proposée par :
04 81 91 43 88 Appelez de la part de Superimmo.com

Vos informations sont transmises directement à l'agence afin qu'elle traite votre demande. Voir notre charte des données personnelles.

Autres recherches

tous les appartements de 4 pièces à Pont-de-Chéruy