06 47 06 02 90 Appelez de la part de Superimmo.com

Vos informations sont transmises directement à l'agence afin qu'elle traite votre demande. Voir notre charte des données personnelles.

Contacter par email
Description

Sous compromis : DERNIER ETAGE/TERRASSE/PARKING - VUE DEGAGEE
A proximité des transports en commun et de tous les commerces : commune limitrophe de Bordeaux, Cenon a su préserver de nombreux espaces boisés sur son territoire (Parc Palmer, Domaine de Loret,...), tout en bénéficiant du dynamisme économique de la métropole. C'est à l'entrée nord de la ville que se dessine dans cette résidence, à deux pas du centre-commercial et de tous les restaurants des 4 Pavillons, cet appartement en parfait état, à la surface idéalement conçue et optimisée.
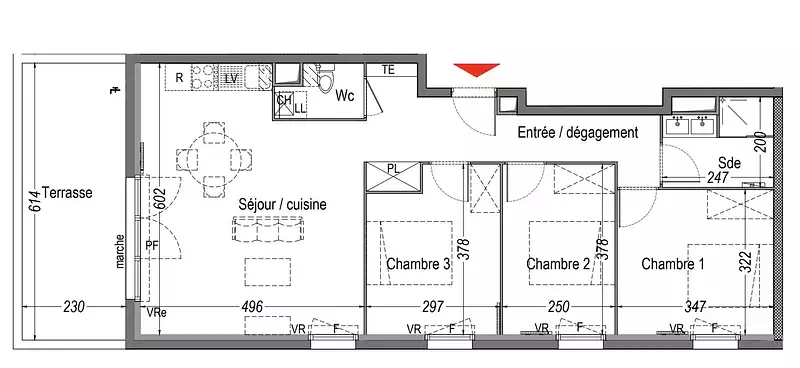
Il se compose d'une entrée avec placard et WC Indépendant. Vous trouverez trois chambres et une salle d'eau double vasque. Vous pourrez profiter d'une magnifique pièce de vie très lumineuse. Deux expositions dont l'exposition sud, prolongé par une terrasse sans vis à vis/vue dégagée, et totalement au calme.
Trois places de parking couvertes et sécurisées complètent ce bien en SUS obligatoire (20 000€).
- Prix TVA 20% parking inclus : 249 900€
- Frais de Notaires Offerts
- Garanties
- RT 2012
- Exonération de Taxe Foncière
- ...
DERNIER ETAGE/TERRASSE/PARKING - VUE DEGAGEE
Honoraires à la charge du vendeur. Dans une copropriété de 64 lots. Aucune procédure n'est en cours. DPE en cours. Les informations sur les risques auxquels ce bien est exposé sont disponibles sur le site Géorisques : georisques.gouv.fr.
Votre conseiller RH Patrimoine : Maxime HERVE
Agent commercial (Entreprise individuelle)
RSAC 133095555 J
RCP 13309666 J

Maj le 02/12/2025 - Réf. agence : VA2751-RHPATRI - Réf Superimmo : ANVXWPNYN
Vous rencontrez un problème sur le site ?
Merci de nous signaler le problème
Caractérisques
Prix de vente : 229 900 € Prix en baissePrix au m² : 3 065 € / m²

Honoraires à la charge du vendeur. Barème d’honoraires : voir le barème

75 m² - 4 pièces - 3 chambresDernier étage (2ème)
Orientation : SudVue dégagée
3 Garages1 terrasse
Année de construction : 2024Chauffage individuel au gaz
Cuisine ouverte1 salle d'eau
Wc séparé - 1 wcDigicode - Interphone
Copropriété de 64 lots
Intéressez par ce type de bien ?
Pour recevoir par email les annonces similaires
CRÉER UNE ALERTE
Historique des prix
31 octobre 2025

Baisse de 1,8%

229 900 €
2 octobre 2025

Baisse de 2,4%

234 000 €
4 juin 2025

Baisse de 3,8%

239 640 €
14 mai 2025

Baisse de 8,8%

249 000 €
28 mars 2025

hausse de 9,6%

273 000 €
11 février 2025
249 000 €
Localisation
DEMANDER L’ADRESSE
Cette annonce vous est proposée par :
06 47 06 02 90 Appelez de la part de Superimmo.com

Vos informations sont transmises directement à l'agence afin qu'elle traite votre demande. Voir notre charte des données personnelles.

Autres recherches

tous les appartements de 4 pièces à Cenon