06 08 03 78 29 Appelez de la part de Superimmo.com

Vos informations sont transmises directement à l'agence afin qu'elle traite votre demande. Voir notre charte des données personnelles.

Contacter par email
Description

Bossé & Mona Immobilier vous propose à la vente cet appartement lumineux de 72m2 habitables / 69m2 Carrez, situé à 150m du métro Mirabeau et à 500m de l'Eglise d'Auteuil.
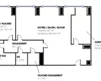
Le bien est situé au 6ème étage avec ascenseur. Il se compose d'une entrée avec placards, d'un séjour de 40m2 exposé Sud-Est (possibilité de faire une 2ème chambre), d'une cuisine indépendante de 8m2 (possibilité de l'ouvrir sur le séjour), d'une chambre de 12m2 avec rangements, d'une salle d'eau, d'un WC indépendant, d'un dressing et d'une cave.
L'appartement dispose de fenêtres en double vitrage, de parquet, de volets roulants électriques, de nombreux rangements et d'un DPE C.
Les charges, de 340 euros par mois, incluent l'ascenseur, le chauffage et les services d'un gardien. Taxe foncière : 1610 euros.
Nous sommes à votre disposition si vous souhaitez vendre ou faire estimer un bien immobilier à Paris ou dans l'Ouest parisien

Publiée le 04/12/2025 - Réf. agence : BFVAP20002277 - Réf Superimmo : ANVX100OOT
Vous rencontrez un problème sur le site ?
Merci de nous signaler le problème
Caractérisques
Prix de vente : 715 000 €Prix au m² : 9 931 € / m²

Honoraires à la charge de l'acquéreur : 2,14% TTC - 15 000 € TTC inclus dans le prix de vente. Barème d’honoraires : voir le barème

72 m² - 3 pièces - 2 chambresÉtage 6/10 avec ascenseur
Orientation : Est, Ouest, Sud, Sud-OuestCave
Année de construction : 1959Séjour de 40 m²
1 salle d'eau1 wc
Bilan énergétique Étiquette climat-énergie : C

Consommation d'énergie

Consommation
161 kWh/m².an
Logement très performantLogement extrêmement consommateur d'énergie

Émission de gaz à effet de serre

Peu d’émissions de CO2
A
B
C
D
E
F
G
27 kgeqCO2/m²/an
Émissions de CO2 très importante

Diagnostics réalisés le 16/10/2025.

Intéressez par ce type de bien ?
Pour recevoir par email les annonces similaires
CRÉER UNE ALERTE
Localisation
DEMANDER L’ADRESSE
Cette annonce vous est proposée par :
06 08 03 78 29 Appelez de la part de Superimmo.com

Vos informations sont transmises directement à l'agence afin qu'elle traite votre demande. Voir notre charte des données personnelles.

Autres recherches

tous les appartements de 3 pièces à Paris 16ème