01 83 77 31 39 Appelez de la part de Superimmo.com

Vos informations sont transmises directement à l'agence afin qu'elle traite votre demande. Voir notre charte des données personnelles.

Contacter par email
Description

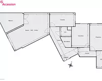
RÉFÉRENCE : S071L-0005 IMMOBILIÈRE 3F propose un appartement de 3 pièces de 71,25m² situé à Châtenay-Malabry au prix de 269 000 €. Au sein d'une résidence sécurisée, ce logement propose une entrée, un séjour ouvert sur un grand balcon, une cuisine séparée, 2 chambres, une salle de bain, des WC séparés et un stationnement privatif en sous-sol. Idéalement localisé, cet appartement se situe à deux pas du RER B et de l'A86. A proximité, vous retrouverez des établissement scolaires allant de la maternelle au lycée, tous les commerces et services de proximité, un marché et une large variété d'établissements sportifs et de loisirs. Chauffage et eau chaude individuels électriques. Estimation taxe foncière : 1 350 €. Montant des charges de copropriété : 1 800 €/an soit 150 €/mois. Nombre de lots en copropriété : 24 lots. Aucune procédure en cours. Visite virtuelle : https:///show/?m=obvQ37tY5f3 Informations sur les risques disponibles sur www.georisques.gouv.fr. Modalités de visites et remise des offres d’achat : visites sur rendez-vous, dépôt des candidatures avec dossier complet auprès du commercialisateur. Offres prioritaires à déposer dans le mois suivant la dernière publicité légale, par mail, en main propre ou par tout autre moyen. Prix et conditions soumis à ressources selon l’article L443-11 et suivants du CCH. Ce logement est commercialisé par TRANSACTIF IMMOBILIER - Clémence Boche.

Publiée le 11/09/2025 - maj le 13/11/2025 - Réf. agence : 243_S071L-0005 - Réf Superimmo : ANVXZFL1J
Vous rencontrez un problème sur le site ?
Merci de nous signaler le problème
Caractérisques
Prix de vente : 269 000 € Prix en baissePrix au m² : 3 789 € / m²
Charges prévisionnelles : 1 800 € / an

Honoraires à la charge du vendeur. Barème d’honoraires : voir le barème

71 m² - 3 pièces - 2 chambres1er étage
1 Parking1 balcon
Chauffage individuel1 salle de bain
Digicode - InterphoneCopropriété de 24 lots
Bilan énergétique Étiquette climat-énergie : D

Consommation d'énergie

Consommation
240 kWh/m².an
Logement très performantLogement extrêmement consommateur d'énergie

Émission de gaz à effet de serre

Peu d’émissions de CO2
A
B
C
D
E
F
G
7 kgeqCO2/m²/an
Émissions de CO2 très importante
Intéressez par ce type de bien ?
Pour recevoir par email les annonces similaires
CRÉER UNE ALERTE
Historique des prix
13 novembre 2025

Baisse de 9,6%

269 000 €
11 septembre 2025
297 448 €
Localisation
DEMANDER L’ADRESSE
Cette annonce vous est proposée par :
01 83 77 31 39 Appelez de la part de Superimmo.com

Vos informations sont transmises directement à l'agence afin qu'elle traite votre demande. Voir notre charte des données personnelles.

Autres recherches

tous les appartements de 3 pièces à Châtenay-Malabry