06 69 63 91 14 Appelez de la part de Superimmo.com

Vos informations sont transmises directement à l'agence afin qu'elle traite votre demande. Voir notre charte des données personnelles.

Contacter par email
Description

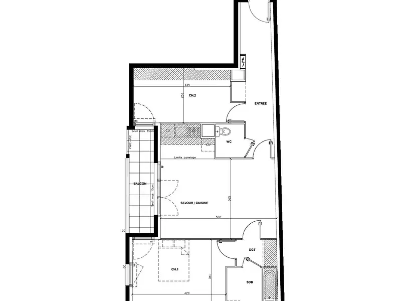
Notre agence Epsilium vous présente ce bel appartement 3 pièces de 68,15 m² avec balcon de 5,49 m² situé dans une résidence en plein centre ville au Blanc-Mesnil, à seulement 10 minutes à pieds du RER B. L'appartement se compose de : Une entrée avec rangements, Un séjour lumineux + une chambre ouvrant sur un balcon de 5,49 m², Une cuisine ouverte (aménageable selon vos envies), Deux chambres spacieuses, Une salle de bains et un WC séparé, Une place de parking privative incluse. Cette résidence moderne offre confort, sécurité et performance énergétique RE 2020, à proximité des commerces, écoles, transports et des futurs aménagements du Grand Paris. - Une Place de stationnement inclus - Faibles charges de copropriété Idéal pour une résidence principale ou un investissement locatif. Pour plus de renseignements, contactez Adrien au 06.69.63.91.14. Copropriété de 40 lots. Charges annuelles : 2045 euros. ADRIEN PIN (EI) Agent Commercial - Numéro RSAC : - .

Publiée le 30/10/2025 - maj le 02/12/2025 - Réf. agence : 984 - Réf Superimmo : ANVXZS11A
Vous rencontrez un problème sur le site ?
Merci de nous signaler le problème
Caractérisques
Prix de vente : 294 000 € Prix en baissePrix au m² : 4 314 € / m²
Charges prévisionnelles : 2 045 € / an

Honoraires à la charge du vendeur.

68,15 m² - 3 pièces - 2 chambresÉtage 3/4 avec ascenseur
1 ParkingSéjour de 22 m²
Sous-solCopropriété de 40 lots
Procédure en cours : Oui
Intéressez par ce type de bien ?
Pour recevoir par email les annonces similaires
CRÉER UNE ALERTE
Historique des prix
2 décembre 2025

Baisse de 1,7%

294 000 €
11 novembre 2025

Baisse de 3,1%

299 000 €
30 octobre 2025
308 500 €
Localisation
DEMANDER L’ADRESSE
Cette annonce vous est proposée par :
06 69 63 91 14 Appelez de la part de Superimmo.com

Vos informations sont transmises directement à l'agence afin qu'elle traite votre demande. Voir notre charte des données personnelles.

Autres recherches

tous les appartements de 3 pièces à Le Blanc-Mesnil