04 83 65 12 20 Appelez de la part de Superimmo.com

Vos informations sont transmises directement à l'agence afin qu'elle traite votre demande. Voir notre charte des données personnelles.

Contacter par email
Description

EXCLUSIVITÉ FONCIA – Cannes Montrose – Luxueux 3 pièces avec terrasse plein sud
Dans le prestigieux quartier de Montrose à Cannes, au sein d'une petite résidence récente haut de gamme, FONCIA Cannes vous propose en exclusivité ce magnifique 3 pièces alliant confort, luminosité et calme absolu.
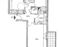
Description du bien :
Entrée accueillante
Séjour lumineux avec double exposition
Grande terrasse de 25 m² exposée plein sud, idéale pour vos moments de détente
Cuisine indépendante
2 chambres confortables
Salle de bains
Double parking en sous-sol
Stationnement extérieur facile
Atouts supplémentaires :
Appartement d'angle avec triple exposition
Vue dégagée sans vis-à-vis
Calme absolu tout en étant à 10 minutes à pied de la rue d'Antibes, de la Croisette et des commerces
Un bien rare dans un secteur recherché, parfait pour une résidence principale ou secondaire.
Une visite s'impose !
A quelques minutes de la Gare TGV et Aéroport de Nice, Idéal pour télétravailleurs la région à la fibre : Paris-Nice :1h30 Situé dans les Alpes Maritimes et de la Provence, Cannes, Antibes, Cagnes sur mer, Grasse et ses parfums, s'étire entre ciel et mer, sur un vaste territoire réputé pour la variété de ses paysages terrestres, marins et sous-marins d'exception, et la douceur de son climat, Les communes de Cannes, Antibes, Cagnes sur Mer, propose également des excursions sur les iles toutes proches (Iles de Lérins, Port-Cros, Porquerolles, Le Levant), Les plages que vous trouverez le long de ce littoral riche en biodiversité seront également vous séduire pour des vacances inoubliables (Plage du Midi, Crique Portet, la Gravette, des ondes) Bénéficiant d'un accès rapide à l'autoroute A57 reliant Marseille ou Nice, La ville de Cannes et son célèbre palais des festivals, est également dotée d'un aéroport particulier pour les pilotes privés, desservant de nombreuses destinations en France comme à l'étranger.
Notre équipe de FONCIA TRANSACTION est constituée de seize conseillers spécialistes en mesure de vous accompagner efficacement dans votre projet d'achat ou de vente.
Spécialisée en gestion locative, syndic de copropriété et achat/vente de biens immobiliers récents et anciens, l'agence immobilière FONCIA TRANSACTION vous propose des offres d'appartements, de maisons et de garages, à vendre ou à louer, dans la région de Cannes, Mandelieu, Antibes, Cagnes sur Mer, Grasse, Mougins, Villeneuve Loubet, et de ses environs : Vallauris, la Colle sur Loup, Vence, St Paul de Vence, Mouans Sartoux.

Publiée le 29/07/2025 - maj le 08/11/2025 - Réf. agence : 00511193 - Réf Superimmo : ANVXZ6BWO
Vous rencontrez un problème sur le site ?
Merci de nous signaler le problème
Caractérisques
Prix de vente : 598 000 € Prix en baissePrix au m² : 8 925 € / m²
Charges prévisionnelles : 3 481 € / an

Honoraires à la charge du vendeur. Barème d’honoraires : voir le barème

Disponible immédiatement67 m² - 3 pièces - 2 chambres
PiscineÉtage 1/3 avec ascenseur
TraversantAnnée de construction : 2012
Chauffage individuel: clim. réversibleAlarme - Digicode - Vidéosurveillance
Fibre optiqueCopropriété de 4 lots
Bilan énergétique Étiquette climat-énergie : B

Consommation d'énergie

Consommation
73 kWh/m².an
Logement très performantLogement extrêmement consommateur d'énergie

Émission de gaz à effet de serre

Peu d’émissions de CO2
A
B
C
D
E
F
G
10 kgeqCO2/m²/an
Émissions de CO2 très importante

Montant estimé des dépenses annuelles d’énergie pour un usage standard (année(s) de référence : 2023)
Minimum : 360 € / an
Maximum : 560 € / an

Diagnostics réalisés le 18/09/2023.

Intéressez par ce type de bien ?
Pour recevoir par email les annonces similaires
CRÉER UNE ALERTE
Historique des prix
7 novembre 2025

Baisse de 5,8%

598 000 €
29 juillet 2025
635 000 €
Localisation
DEMANDER L’ADRESSE
Cette annonce vous est proposée par :
140 avis clients
04 83 65 12 20 Appelez de la part de Superimmo.com

Vos informations sont transmises directement à l'agence afin qu'elle traite votre demande. Voir notre charte des données personnelles.

Autres recherches

tous les appartements de 3 pièces à Cannes