06 87 07 86 21 Appelez de la part de Superimmo.com

Vos informations sont transmises directement à l'agence afin qu'elle traite votre demande. Voir notre charte des données personnelles.

Contacter par email
Description

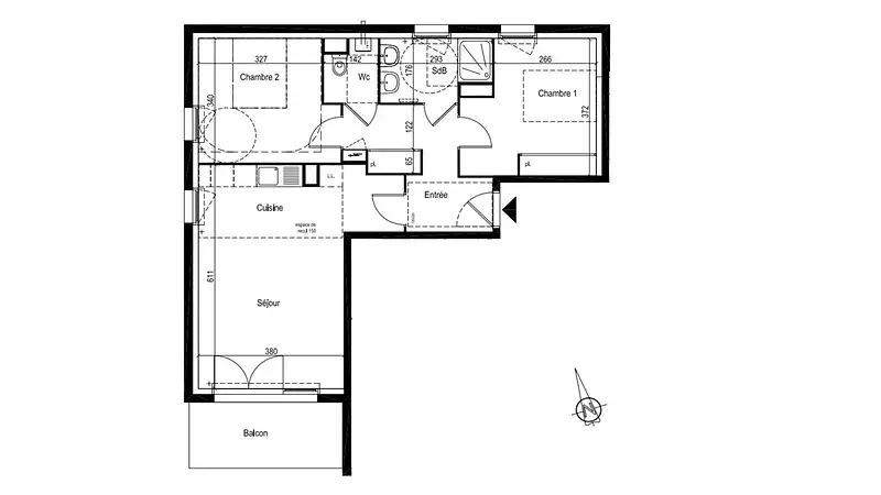
APPARTEMENT T3 PLOEREN CENTRE.
PLOEREN. Dans le centre de Ploeren proche des commerces et des transports en commun, nous vous présentons cet appartement de type 3 neuf, situé au premier étage d'un immeuble de 3 niveaux, au calme et dans un cadre verdoyant.
Cet appartement d'environ 64.68m² habitables se compose d'une entrée avec placard, une pièce de vie avec balcon orientés Sud, WC indépendant, 2 chambres et une salle d'eau.
Une place de parking extérieure et un garage fermé viennent compléter ce bien.
Livraison prévue pour fin d'année 2024.
Vous apprécierez la localisation et la fonctionnalité de cet appartement.
IMMOBILIER MER ET CAMPAGNE, 12 place de l'église à ARRADON, 1 rue des îles à PLOEREN. Vos contacts, famille EMEREAU : 06.87.07.86.21 / 06.78.31.87.42

Maj le 03/08/2025 - Réf. agence : 1854 - Réf Superimmo : ANVXWQDXI
Vous rencontrez un problème sur le site ?
Merci de nous signaler le problème
Caractérisques
Prix de vente : 320 320 €Prix au m² : 4 952 € / m²

12 320 € TTC inclus dans le prix de vente.

64,68 m² - 3 pièces - 2 chambresAnnée de rénovation : 2024
1er étage avec ascenseurVue dégagée
Fenêtres double vitrageInterphone - Visiophone
Bilan énergétique
Non soumis au DPE
Intéressez par ce type de bien ?
Pour recevoir par email les annonces similaires
CRÉER UNE ALERTE
Localisation
DEMANDER L’ADRESSE
Cette annonce vous est proposée par :
06 87 07 86 21 Appelez de la part de Superimmo.com

Vos informations sont transmises directement à l'agence afin qu'elle traite votre demande. Voir notre charte des données personnelles.

Autres recherches

tous les appartements de 3 pièces à Ploeren