07 60 03 20 12 Appelez de la part de Superimmo.com

Vos informations sont transmises directement à l'agent afin qu’il traite votre demande.

Contacter par email
Description

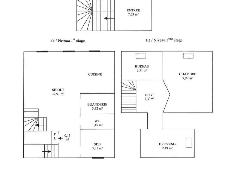
iad France - Virginie Menguy vous propose: 45390 PUISEAUX , Vendu libre .
Appartement EN TRIPLEX de 60m2 CARREZ+15,5m2,
proche centre ville, des écoles et commerces.
Au RDC: Entrée
Au 1er étage: Séjour avec espace cuisine , une buanderie , un WC , une salle d'eau .
Au 2ième étage: 1 bureau, 1 chambre, un dressing.
La presente annonce immobiliere vise 1 lot situé dans une copropriété de 7 lots au total et ne faisant l'objet d'aucune procédure en cours citée à l'article L. 721-1 du code de la construction et de l'habitation. Montant moyen mensuel de charges déclaré par le vendeur : 0€ par mois (soit 0 € annuel). Honoraires d'agence à la charge de l'acquéreur. Prix honoraires inclus : 79000 euros. Prix hors honoraires : 74000 euros. Honoraires TTC à la charge de l'acquéreur (6,76% du prix du bien hors honoraires) : 5000 euros.
Information d'affichage énergétique sur ce bien : classe ENERGIE E indice 328 et classe CLIMAT B indice 10. Les informations sur les risques auxquels ce bien est exposé, y compris l'obligation légale de débroussaillement, sont disponibles sur le site Géorisques : http://www.georisques.gouv.fr.
La présente annonce immobilière a été rédigée sous la responsabilité éditoriale de Mme Virginie Menguy mandataire indépendant en immobilier (sans détention de fonds), agent commercial de la SAS I@D France immatriculé au RSAC de ORLEANS sous le numéro 843658170, titulaire de la carte de démarchage immobilier pour le compte de la société I@D France SAS.

Publiée le 19/09/2025 - maj le 18/11/2025 - Réf. agence : 1848466 - Réf Superimmo : ANVXZHSG4
Vous rencontrez un problème sur le site ?
Merci de nous signaler le problème
Caractérisques
Prix de vente : 79 000 €Prix au m² : 1 317 € / m²

Honoraires à la charge du vendeur. Barème d’honoraires : voir le barème

60 m² - 3 pièces - 2 chambresCopropriété de 7 lots
Bilan énergétique Étiquette climat-énergie : E

Consommation d'énergie

Consommation
328 kWh/m².an
Logement très performantLogement extrêmement consommateur d'énergie

Émission de gaz à effet de serre

Peu d’émissions de CO2
A
B
C
D
E
F
G
10 kgeqCO2/m²/an
Émissions de CO2 très importante

Montant estimé des dépenses annuelles d’énergie pour un usage standard (année(s) de référence : 2023)
Minimum : 1 520 € / an
Maximum : 2 100 € / an

Diagnostics réalisés le 29/07/2025.

Intéressez par ce type de bien ?
Pour recevoir par email les annonces similaires
CRÉER UNE ALERTE
Localisation
DEMANDER L’ADRESSE
Cette annonce vous est proposée par :
62 avis clients
07 60 03 20 12 Appelez de la part de Superimmo.com

Vos informations sont transmises directement à l'agent afin qu’il traite votre demande.

Autres recherches

tous les appartements de 3 pièces à Puiseaux