06 76 31 97 31 Appelez de la part de Superimmo.com

Vos informations sont transmises directement à l'agent afin qu’il traite votre demande.

Contacter par email
Description

iad France - Aurélie Veloso (06 76 31 97 31) vous propose : Découvrez la Villa Carlus Magnus, une résidence de prestige à Nîmes comprenant 7 appartements.
Nous sommes ravis de vous présenter la Villa Carlus Magnus, une opportunité de devenir propriétaire dans l'une des résidences les plus prisées de Nîmes. Cette résidence de standing, nichée au cOEur d'un cadre verdoyant, incarne l'élégance et le confort moderne.
Cette résidence est idéale pour devenir votre résidence principale ou pour réaliser un investissement, alliant confort de vie et avantage fiscal.
Un Cadre de Vie Exceptionnel La Villa Carlus Magnus se situe dans un quartier résidentiel calme et recherché de Nîmes, offrant un environnement paisible tout en restant proche des commodités. Vous bénéficierez d'un cadre de vie idéal, mêlant tranquillité et accessibilité, avec des espaces verts et des jardins privatifs qui favorisent la détente et le bien-être.
Des Prestations Haut de Gamme Cette résidence se distingue par ses prestations de grande qualité. Chaque logement a été conçu pour offrir un maximum de confort et de modernité. Vous y trouverez :
•Des matériaux nobles et durables : Les sols en carrelage de grand format, les menuiseries en aluminium, et les finitions soignées apportent une touche de luxe à chaque espace.
•Un équipement complet : Les cuisines sont entièrement aménagées et équipées avec des appareils électroménagers de marques renommées. Les salles de bains, modernes et épurées, sont dotées de meubles design et de douches à l'italienne.
•Un confort thermique et acoustique optimal : Grâce à une isolation performante et des systèmes de chauffage et de climatisation individuels, chaque appartement offre un cadre de vie agréable toute l'année.
Des Espaces de Vie Conçus pour Votre Bien-Être La Villa Carlus Magnus propose des appartements lumineux, avec de larges baies vitrées s'ouvrant sur de vastes terrasses ou balcons, permettant de profiter pleinement de la douceur du climat nîmois. Les espaces extérieurs sont aménagés pour offrir des moments de détente en plein air, dans un cadre préservé.
Sécurité et Sérénité La sécurité des résidents est une priorité. La résidence est entièrement clôturée, avec un accès sécurisé par portail automatique et interphone. De plus, chaque appartement est équipé d'un système de vidéophone pour un contrôle d'accès optimal.
Emplacement Idéal Située à quelques minutes du centre-ville de Nîmes, la Villa Carlus Magnus bénéficie d'un emplacement stratégique, à proximité des commerces, des écoles, et des transports en commun. Vous serez également à deux pas des grands axes routiers, facilitant vos déplacements vers les principales villes de la région.
Un Investissement de Qualité La Villa Carlus Magnus représente une opportunité unique pour ceux qui recherchent un bien immobilier alliant confort, modernité, et qualité de vie. Que vous souhaitiez y vivre ou investir, cette résidence offre des atouts indéniables pour répondre à vos attentes les plus exigeantes.
Venez Découvrir Votre Futur Chez Vous. Ne manquez pas cette occasion exceptionnelle.
Contactez-moi dès aujourd'hui pour plus d'informations ou pour organiser un rendez-vous.
Achèvement : septembre 2026
Honoraires d’agence à la charge du vendeur. Bien non soumis au DPE. Les informations sur les risques auxquels ce bien est exposé sont disponibles sur le site Géorisques : www.georisques.gouv.fr. La présente annonce immobilière a été rédigée sous la responsabilité éditoriale de Mme Aurélie Veloso EI (ID 71668), mandataire indépendant en immobilier (sans détention de fonds), agent commercial de la SAS I@D France immatriculé au RSAC de NIMES sous le numéro 919091728, titulaire de la carte de démarchage immobilier pour le compte de la société I@D France SAS.
Retrouvez tous nos biens sur notre site internet.

Maj le 23/04/2025 - Réf. agence : 1590771-3 - Réf Superimmo : ANVXWJWDB
Vous rencontrez un problème sur le site ?
Merci de nous signaler le problème
Caractérisques
Prix de vente : 258 000 €Prix au m² : 4 300 € / m²

Honoraires à la charge du vendeur. Barème d’honoraires : voir le barème

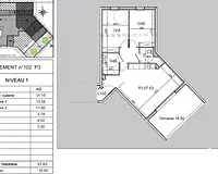
60 m² - 2 piècesRez-de-chaussée
Avec ascenseur1 Parking
TerrasseCuisine ouverte, équipée
Bilan énergétique
Non soumis au DPE
Intéressez par ce type de bien ?
Pour recevoir par email les annonces similaires
CRÉER UNE ALERTE
Localisation
DEMANDER L’ADRESSE
Cette annonce vous est proposée par :
29 avis clients
06 76 31 97 31 Appelez de la part de Superimmo.com

Vos informations sont transmises directement à l'agent afin qu’il traite votre demande.

Autres recherches

tous les appartements de 2 pièces à Nîmes