01 55 78 27 27 Appelez de la part de Superimmo.com

Vos informations sont transmises directement à l'agence afin qu'elle traite votre demande. Voir notre charte des données personnelles.

Contacter par email
Description

M° École Vétérinaire / Charenton-Écoles
À seulement 800 mètres du métro ligne 8, dans le quartier recherché du Pont de Maisons-Alfort, aux portes de Charenton-le-Pont et à proximité immédiate des bords de Marne, découvrez ce bel appartement traversant de 3 pièces, situé en rez-de-chaussée d'un immeuble bien entretenu.
Baigné de lumière et récemment rafraîchi, cet appartement offre un cadre de vie agréable et fonctionnel, idéal pour un premier achat familial ou pour l'exercice d'une profession libérale (médecin déjà présent dans l'immeuble).
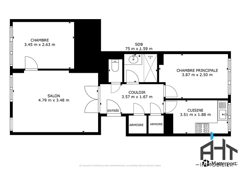
Il se compose d'une entrée, d'un séjour lumineux, de deux chambres (dont une sur cour au calme), d'une cuisine séparée et aménagée, d'une salle d'eau et d'un WC indépendant. Une cave complète ce bien.
Vous apprécierez la proximité immédiate des commerces, des écoles, du marché et des espaces verts, ainsi que l'accès rapide aux axes autoroutiers A4 / périphérique et aux transports vers Paris.
Un bien rare sur le secteur, alliant luminosité, praticité et emplacement de choix.
Possibilité de profession libérale.
Honoraires inclus de 4.5% TTC à la charge de l'acquéreur. Prix hors honoraires 220 000 €. Dans une copropriété de 119 lots. Quote-part moyenne du budget prévisionnel 3 300 €/an. Aucune procédure n'est en cours. Classe énergie E, Classe climat E Montant estimé des dépenses annuelles d'énergie pour un usage standard : entre 1280.00 € et 1780.00 € sur les années 2021, 2022 et 2023 (abonnements compris). Les informations sur les risques auxquels ce bien est exposé sont disponibles sur le site Géorisques : georisques.gouv.fr.
Retrouvez l'annonce de l'agence immobilière AHT IMMOBILIER sur :

Publiée le 25/11/2025 - Réf. agence : VA4137-AHT2 - Réf Superimmo : ANVXZY8XZ
Vous rencontrez un problème sur le site ?
Merci de nous signaler le problème
Caractérisques
Prix de vente : 229 900 €Prix au m² : 4 382 € / m²
Charges prévisionnelles : 3 300 € / an

Honoraires à la charge de l'acquéreur : 4,5% TTC - 9 900 € TTC inclus dans le prix de vente. Barème d’honoraires : voir le barème

52,47 m² - 3 pièces - 2 chambresRez-de-chaussée
Avec ascenseurCave
Année de construction : 1962Chauffage collectif au gaz
Cuisine séparée, équipée1 salle d'eau
Wc séparé - 1 wcCopropriété de 119 lots
Bilan énergétique Étiquette climat-énergie : E

Consommation d'énergie

Consommation
312 kWh/m².an
Logement très performantLogement extrêmement consommateur d'énergie

Émission de gaz à effet de serre

Peu d’émissions de CO2
A
B
C
D
E
F
G
68 kgeqCO2/m²/an
Émissions de CO2 très importante

Montant estimé des dépenses annuelles d’énergie pour un usage standard (année(s) de référence : 2021)
Minimum : 1 280 € / an
Maximum : 1 780 € / an

Diagnostics réalisés le 01/08/2025.

Intéressez par ce type de bien ?
Pour recevoir par email les annonces similaires
CRÉER UNE ALERTE
Localisation
DEMANDER L’ADRESSE
Cette annonce vous est proposée par :
01 55 78 27 27 Appelez de la part de Superimmo.com

Vos informations sont transmises directement à l'agence afin qu'elle traite votre demande. Voir notre charte des données personnelles.

Autres recherches

tous les appartements de 3 pièces à Saint-Maurice