06 78 66 43 29 Appelez de la part de Superimmo.com

Vos informations sont transmises directement à l'agent afin qu’il traite votre demande.

Contacter par email
Description

ORCHIES appartement T2 avec Jardin
Idéal investisseur ou résidence Principale
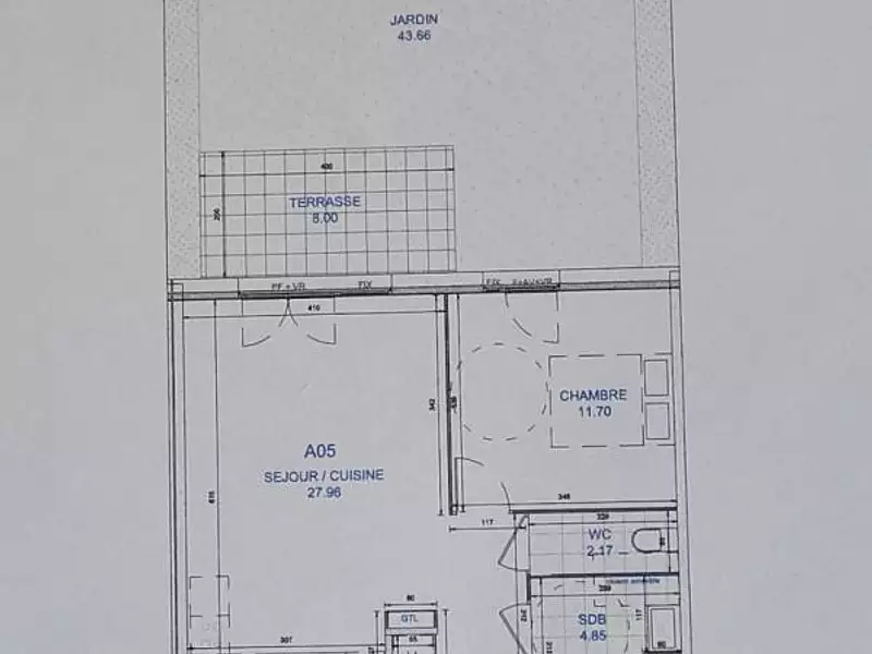
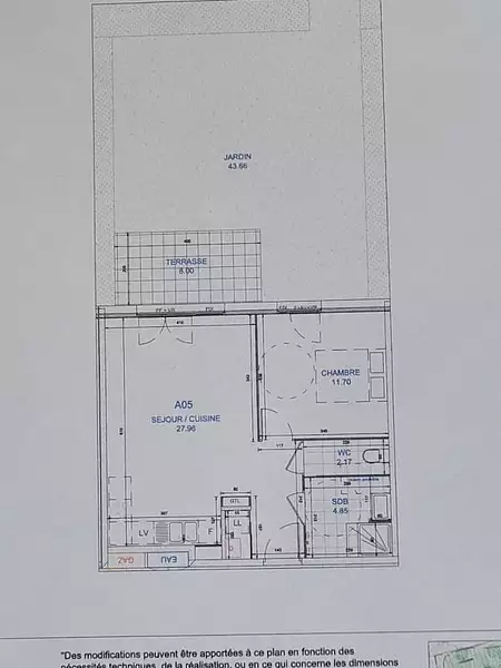
Corinne DEFRANCE vous présente cet appartement de 47M² avec son jardin et sa terrasse.
Passé l'entrée, vous découvrez un WC séparé, une salle de bains .
En face, une chambre de 12M²;
Un grand salon de 28M² avec cuisine ouverte, baigné par la lumière grâce à la baie vitrée donnant sur la terrasse de 8 M² et un jardin de 44 m².
copropriété de 28 lots.
La résidence est située au centre d'Orchies, proche de la mairie, des commerces et des écoles.
Prix: 182 700 euros FAI honoraires à la charge vendeur.
DEP: B GES: A
Informations sur les risques disponibles sur www.georisques.gouv.fr
Pour visiter et vous accompagner dans votre projet, contactez Corinne DEFRANCE, au 0678664329 ou, par courriel à .
Selon l'article L.561.5 du Code Monétaire et Financier, pour l'organisation de la visite, la présentation d'une pièce d'identité vous sera demandée.
Cette présente annonce a été rédigée sous la responsabilité éditoriale de Corinne DEFRANCE agissant sous le statut d'agent commercial immatriculé au RSAC Douai 822355244 auprès de SAS PROPRIETES PRIVEES, au capital de 44 920 euros, ZAC LE CHÊNE FERRÉ - 44 ALLÉE DES CINQ CONTINENTS 44120 VERTOU; SIRET 487 624 777 00040, RCS Nantes. Carte Professionnelle Transactions sur immeubles et fonds de commerce (T) et Gestion immobilière (G) n°CPI 4401 2016 000 010 388 délivrée par la CCI Nantes - Saint Nazaire. Compte séquestre n°30932508467 BPA SAINT-SEBASTIEN-SUR-LOIRE (44230). Garantie GALIAN-SMABTP - 89 rue de la Boétie, 75008 Paris - n°28137 J pour 2 000 000 euros pour T et 120 000 euros pour G. Assurance responsabilité civile professionnelle par GALIAN-SMABTP n° de police 28137.J
Mandat réf : .402 208 - Le professionnel garantit et sécurise votre projet immobilier.
Copropriété de 28 lots - dont 28 lots habitation. ().
Charges annuelles : 300 euros.
Corinne DEFRANCE (EI) Agent Commercial - Numéro RSAC : douai 822355244 - .

Publiée le 05/04/2025 - maj le 13/11/2025 - Réf. agence : 402208CDEF - Réf Superimmo : ANVXY96QP
Vous rencontrez un problème sur le site ?
Merci de nous signaler le problème
Caractérisques
Prix de vente : 182 700 €Prix au m² : 3 887 € / m²
Charges prévisionnelles : 300 € / an

Honoraires à la charge du vendeur. Barème d’honoraires : voir le barème

47 m² - 2 pièces - 1 chambreRez-de-chaussée
Avec ascenseurParking extérieur
Année de construction : 2024Chauffage individuel au gaz
Cuisine ouverte1 salle de bain
1 wcJardin privatif
Copropriété de 28 lots
Intéressez par ce type de bien ?
Pour recevoir par email les annonces similaires
CRÉER UNE ALERTE
Localisation
DEMANDER L’ADRESSE
Cette annonce vous est proposée par :
06 78 66 43 29 Appelez de la part de Superimmo.com

Vos informations sont transmises directement à l'agent afin qu’il traite votre demande.

Autres recherches

tous les appartements de 2 pièces à Orchies