06 77 08 69 93 Appelez de la part de Superimmo.com

Vos informations sont transmises directement à l'agent afin qu’il traite votre demande.

Contacter par email
Description

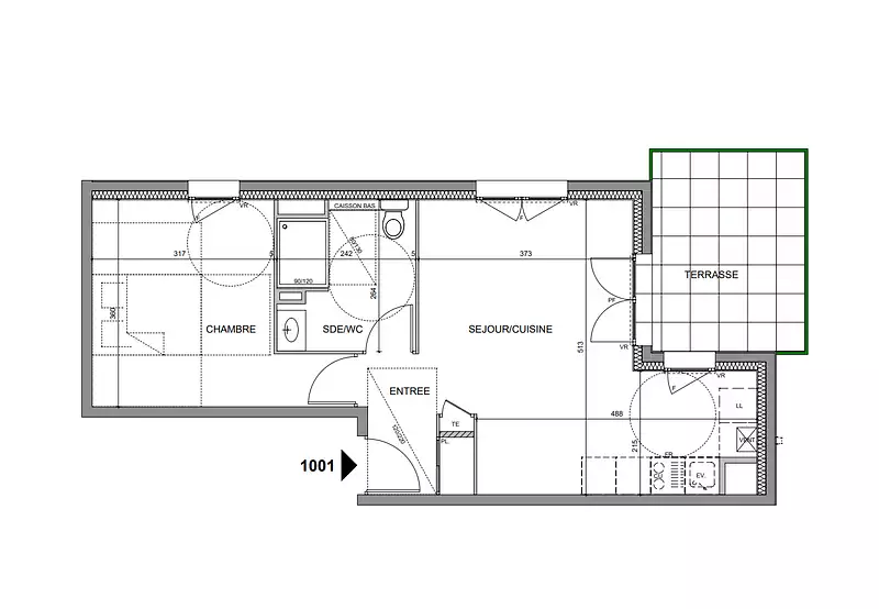
Il s'agit d'un appartement 2 pièces situé au RDC comprenant :
Surface habitable : 44,00 m2 avec :
Séjour/Cuisine de 21,79 m2
Chambre de 12,73 m2
Salle d'eau/WC de 5,92 m2
Entrée avec placard de 3,56 m2
Espace extérieur :
Terrasse de 9,26 m2
La résidence se distingue par :
Une architecture contemporaine sur 3 niveaux plus attique
Des prestations soignées : carrelage 45x45, volets roulants électriques, chauffage individuel gaz
Un emplacement privilégié dans un quartier résidentiel calme
Une construction aux normes actuelles
Un environnement verdoyant avec espaces paysagers communs
Localisation :
À 200m de l'arrêt de bus 'Église des Vallées'
À 250m de l'école du Châtelard
À 500m d'une boulangerie
À 900m d'un supermarché
À 1,2 km du centre-ville et de la gare SNCF
À 2,5 km du port et des navettes pour Lausanne
INFORMATIONS LOI ALUR
Statut du négociateur : Agent immobilier
Classe énergie et climat : B
Montant des dépenses annuelles d'énergie pour un usage standard : NC
Bien soumis au statut de la copropriété
Les honoraires sont à la charge du vendeur
Citation partie annuelle (moyenne) : NC
Les informations sur les risques associés à ce bien sont disponibles sur le site Géorisques : www.georisques.gouv.fr
Saisissez cette occasion exceptionnelle dès maintenant ! Pour de plus amples informations et pour planifier une visite, veuillez contacter Maxime, votre agent immobilier au 06.77.08.69.93.

Publiée le 13/10/2025 - Réf. agence : 1001_edoua_jardtull_121025 - Réf Superimmo : ANVXZNQQQ
Vous rencontrez un problème sur le site ?
Merci de nous signaler le problème
Caractérisques
Prix de vente : 249 000 €Prix au m² : 5 659 € / m²

Honoraires à la charge du vendeur. Barème d’honoraires : voir le barème

44 m² - 2 pièces - 1 chambreOrientation : Est, Sud, Sud-Est
1 GarageSéjour de 21 m²
1 salle de bain1 wc
Bilan énergétique Étiquette climat-énergie : C

Consommation d'énergie

Consommation
56 kWh/m².an
Logement très performantLogement extrêmement consommateur d'énergie

Émission de gaz à effet de serre

Peu d’émissions de CO2
A
B
C
D
E
F
G
12 kgeqCO2/m²/an
Émissions de CO2 très importante

Montant estimé des dépenses annuelles d’énergie pour un usage standard (année(s) de référence : 2021)
Minimum : 338 € / an
Maximum : 450 € / an

Diagnostics réalisés le 14/01/2025.

Intéressez par ce type de bien ?
Pour recevoir par email les annonces similaires
CRÉER UNE ALERTE
Localisation
DEMANDER L’ADRESSE
Cette annonce vous est proposée par :
06 77 08 69 93 Appelez de la part de Superimmo.com

Vos informations sont transmises directement à l'agent afin qu’il traite votre demande.

Autres recherches

tous les appartements de 2 pièces à Thonon-les-Bains