06 10 16 28 98 Appelez de la part de Superimmo.com

Vos informations sont transmises directement à l'agent afin qu’il traite votre demande.

Contacter par email
Description

iad France - Claire Puissant vous propose: T2 avec balcon meublé & loué + Double place de parking en sous-sol.
A 810m du RER Roissy (13 mns à pied)
Rendement locatif brut : 5,86%
Rendement Net net : 4,18%
Loué meublé (bail de un an) 875€ par mois CC
Flux de Trésorerie Immédiat : L'appartement est déjà loué, assurant une rentrée d'argent dès la signature.
Zéro Travaux : Construction 2021 (sous garantie décennale).
Faibles charges de copropriété garanties par l'excellente performance énergétique.
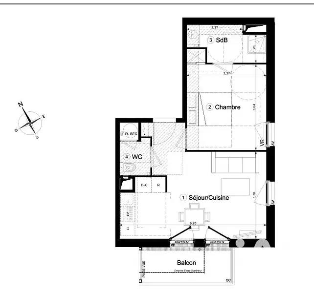
Cet appartement de 42,66m² situé au premier étage avec ascenseur, de 2 pièces offre un cadre de vie moderne et confortable, idéal pour un premier achat ou pour un investissement locatif.
Lumineux, cet appartement se compose d'une entrée, une pièce de vie de 23m² avec sa cuisine ouverte équipée & aménagée, un agréable balcon (orienté SUD) de 5.7m² offrant un espace extérieur privilégié pour se détendre.
Une SUITE PARENTALE de 12,8m² avec son dressing et sa salle d'eau carrelée, une toilette séparée.
La résidence dispose de nombreux équipements modernes pour votre confort au quotidien : fibre optique, accès PMR, VMC, sécurisé avec digicode, interphone et vidéo surveillance pour le parking en sous-sol.
Vous bénéficiez également d'un chauffage individuel électrique thermodynamique avec distribution par radiateurs .
Deux places de parking sont incluses pour stationner en toute tranquillité.
La presente annonce immobiliere vise 2 lots situés dans une copropriété de 326 lots au total et ne faisant l'objet d'aucune procédure en cours citée à l'article L. 721-1 du code de la construction et de l'habitation. Montant moyen mensuel de charges déclaré par le vendeur : 75.18€ par mois (soit 902.16 € annuel). Honoraires d'agence à la charge du vendeur.
Information d'affichage énergétique sur ce bien : classe ENERGIE C indice 117 et classe CLIMAT A indice 3. Les informations sur les risques auxquels ce bien est exposé, y compris l'obligation légale de débroussaillement, sont disponibles sur le site Géorisques : http://www.georisques.gouv.fr.
La présente annonce immobilière a été rédigée sous la responsabilité éditoriale de Mme Claire Puissant mandataire indépendant en immobilier (sans détention de fonds), agent commercial de la SAS I@D France immatriculé au RSAC de CRETEIL sous le numéro 801765264, titulaire de la carte de démarchage immobilier pour le compte de la société I@D France SAS.

Publiée le 09/12/2025 - Réf. agence : 1906526 - Réf Superimmo : ANVX101P5Z
Vous rencontrez un problème sur le site ?
Merci de nous signaler le problème
Caractérisques
Prix de vente : 179 000 €Prix au m² : 4 163 € / m²
Charges prévisionnelles : 902,16 € / an

Honoraires à la charge du vendeur. Barème d’honoraires : voir le barème

43 m² - 2 pièces - 1 chambreÉtage 1/3 avec ascenseur
1 Parking1 balcon
Année de construction : 2021Chauffage individuel électrique (radiateurs)
Cuisine ouverte, équipéeAlarme - Digicode - Interphone
Télévision par cableCopropriété de 326 lots
Bilan énergétique Étiquette climat-énergie : C

Consommation d'énergie

Consommation
117 kWh/m².an
Logement très performantLogement extrêmement consommateur d'énergie

Émission de gaz à effet de serre

Peu d’émissions de CO2
A
B
C
D
E
F
G
3 kgeqCO2/m²/an
Émissions de CO2 très importante

Montant estimé des dépenses annuelles d’énergie pour un usage standard (année(s) de référence : 2023)
Minimum : 460 € / an
Maximum : 670 € / an

Diagnostics réalisés le 01/07/2025.

Intéressez par ce type de bien ?
Pour recevoir par email les annonces similaires
CRÉER UNE ALERTE
Localisation
DEMANDER L’ADRESSE
Cette annonce vous est proposée par :
50 avis clients
06 10 16 28 98 Appelez de la part de Superimmo.com

Vos informations sont transmises directement à l'agent afin qu’il traite votre demande.

Autres recherches

tous les appartements de 2 pièces à Roissy-en-Brie