06 73 75 66 47 Appelez de la part de Superimmo.com

Vos informations sont transmises directement à l'agent afin qu’il traite votre demande.

Contacter par email
Description

iad France - Jessica Alessandrini (06 73 75 66 47) vous propose : Spacieux 2 pièces avec grand balcon et parking – Antibes (06600)
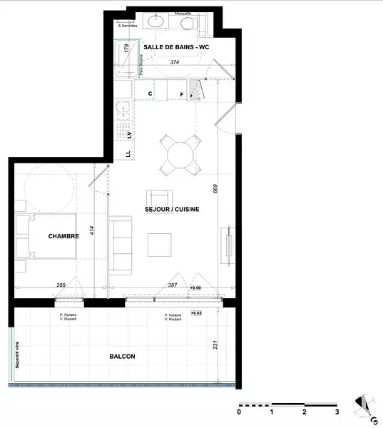
Dans un quartier calme et recherché d’Antibes, découvrez cet agréable 2 pièces de 43,05 m² environ, situé au 2? étage d’une résidence récente et bien entretenue. Idéal pour un investissement locatif ou une résidence principale, ce bien séduit par son exposition sud-ouest et son grand balcon de 15,25 m² environ offrant un bel espace extérieur sans vis-à-vis.
L’appartement se compose d’un séjour-cuisine lumineux de 24,85 m² environ, d’une chambre confortable de 11,75 m² environ, et d’une salle d’eau moderne avec WC de 6,45 m² environ.
Les volumes sont bien répartis, sans perte d’espace, et la double orientation permet une belle clarté naturelle toute la journée.
Une place de parking privative en sous-sol est incluse dans le prix.
Le chauffage électrique individuel assure une gestion simple et maîtrisée des charges.
________________________________________
???? Informations financières
•Prix de vente : 299 000 €
•Frais de notaire à la charge du vendeur
•Surface habitable : 43,05 m² environ
•Surface extérieure : 15,25 m² environ (balcon)
•Stationnement : 1 place privative en sous-sol
________________________________________
???? Rentabilité locative estimée
Avec un loyer de marché d’environ 785 € par mois, ce bien présente une rentabilité brute avoisinant 3,4 %.
Sa localisation stratégique, à proximité de Sophia-Antipolis, des transports et des commerces, en fait un placement patrimonial solide, particulièrement adapté à la location longue durée ou à la location meublée.
________________________________________
?? Les points forts
•Exposition sud-ouest offrant une belle luminosité
•Balcon généreux de 15 m² environ, parfait pour les repas ou la détente
•Séjour spacieux de près de 25 m² environ
•Parking en sous-sol inclus dans le prix
•Frais de notaire à la charge du vendeur
•Excellent potentiel locatif dans un secteur prisé d’Antibes
Honoraires d’agence à la charge du vendeur. Bien non soumis au DPE. Les informations sur les risques auxquels ce bien est exposé sont disponibles sur le site Géorisques : www.georisques.gouv.fr. La présente annonce immobilière a été rédigée sous la responsabilité éditoriale de Mlle Jessica Alessandrini EI (ID 90440), mandataire indépendant en immobilier (sans détention de fonds), agent commercial de la SAS I@D France immatriculé au RSAC de Draguigan sous le numéro 451826549, titulaire de la carte de démarchage immobilier pour le compte de la société I@D France SAS.
Retrouvez tous nos biens sur notre site internet.

Publiée le 19/11/2025 - maj le 24/11/2025 - Réf. agence : 1863394-15 - Réf Superimmo : ANVXZWY45
Vous rencontrez un problème sur le site ?
Merci de nous signaler le problème
Caractérisques
Prix de vente : 299 000 €Prix au m² : 6 953 € / m²

Honoraires à la charge du vendeur. Barème d’honoraires : voir le barème

43 m² - 2 piècesRez-de-chaussée
Bilan énergétique
Non soumis au DPE
Intéressez par ce type de bien ?
Pour recevoir par email les annonces similaires
CRÉER UNE ALERTE
Localisation
DEMANDER L’ADRESSE
Cette annonce vous est proposée par :

Vos informations sont transmises directement à l'agent afin qu’il traite votre demande.

Autres recherches

tous les appartements de 2 pièces à Antibes