06 31 01 81 18 Appelez de la part de Superimmo.com

Vos informations sont transmises directement à l'agent afin qu’il traite votre demande.

Contacter par email
Description

34670 - SAINT-BRES - 2 PIÈCES - 1 CHAMBRE - 40 m² - APPARTEMENT AVEC TERRASSE - IDÉAL PREMIER ACHAT
effiCity, l'agence qui estime votre bien en ligne, vous propose cet appartement T2 récent et climatisé, situé dans un quartier paisible de Saint-Brès, à proximité immédiate des commerces et des écoles.
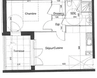
Ce bien de 40 m², situé au rez-de-chaussée surélevé d'un immeuble moderne avec ascenseur et très bien entretenu, offre un cadre de vie agréable et confortable.
Il se compose d'une pièce de vie lumineuse de 20 m² avec cuisine ouverte à réaménager donnant sur une terrasse de 7m² exposée sud-ouest, d'une chambre de 13 m² avec dressing et accès direct à la terrasse, ainsi que d'une salle d'eau avec WC de 5,5m².
Des travaux sont à prévoir, notamment le remplacement de la cuisine et la rénovation des peintures, offrant l'opportunité de personnaliser entièrement l'espace selon vos goûts. Une place de parking privée et sécurisée en sous-sol vient compléter cet appartement.
Ce T2 représente une belle opportunité pour un premier achat ou un investissement. Pour toute information ou pour organiser une visite, vous pouvez me contacter au 06 31 01 81 18 ou par e-mail à
Les informations sur les risques auxquels ce bien est exposé sont disponibles sur le site Georisque : georisques. gouv. fr
Jennifer Sandoz - EI - est Agent Commercial mandataire en immobilier, immatriculé au Registre Spécial des Agents Commerciaux du Tribunal de Commerce de Montpellier sous le n°881649263.
Siège social du mandant : effiCity, 48 avenue de Villiers - 75017 PARIS - Société par Actions Simplifiée, société au capital de 132 373,05 euros, immatriculée au RCS Paris 497 617 746 et titulaire de la Carte professionnelle CPI 7501 2015 000 002 025 - CCI Paris IDF - Caisse de Garantie : GALIAN Assurances 89 rue de la Boétie 75008 Paris

Publiée le 26/11/2025 - maj le 05/12/2025 - Réf. agence : 200167 - Réf Superimmo : ANVXZYOQC
Vous rencontrez un problème sur le site ?
Merci de nous signaler le problème
Caractérisques
Prix de vente : 149 000 €Prix au m² : 3 725 € / m²
Charges prévisionnelles : 1 048 € / anTaxe foncière : 178 €

Honoraires à la charge du vendeur. Barème d’honoraires : voir le barème

40 m² - 2 pièces - 1 chambreRez-de-chaussée
Avec ascenseurOrientation : Est / Ouest
GarageTerrasse
Année de construction : 2016Chauffage individuel électrique (clim. réversible, pompe à chaleur)
Séjour de 20 m²1 salle d'eau
1 wcCopropriété de 56 lots
Bilan énergétique Étiquette climat-énergie : B

Consommation d'énergie

Consommation
85 kWh/m².an
Logement très performantLogement extrêmement consommateur d'énergie

Émission de gaz à effet de serre

Peu d’émissions de CO2
A
B
C
D
E
F
G
2 kgeqCO2/m²/an
Émissions de CO2 très importante

Montant estimé des dépenses annuelles d’énergie pour un usage standard (année(s) de référence : 2023)
Minimum : 320 € / an
Maximum : 500 € / an

Diagnostics réalisés le 25/11/2025.

Intéressez par ce type de bien ?
Pour recevoir par email les annonces similaires
CRÉER UNE ALERTE
Localisation
DEMANDER L’ADRESSE
Cette annonce vous est proposée par :
37 avis clients
06 31 01 81 18 Appelez de la part de Superimmo.com

Vos informations sont transmises directement à l'agent afin qu’il traite votre demande.

Autres recherches

tous les appartements de 2 pièces à Saint-Brès