06 63 22 35 44 Appelez de la part de Superimmo.com

Vos informations sont transmises directement à l'agent afin qu’il traite votre demande.

Contacter par email
Description

iad France - Myriam MICELI vous propose: ** OPPORTUNITÉ À SAISIR ** Parfait pour ACHAT ou INVESTISSEMENT LOCATIF
Dans une PETITE RÉSIDENCE DE 2 ÉTAGES, SÉCURISÉE à proximité du centre-ville et SES COMMERCES et des TRANSPORTS en commun.
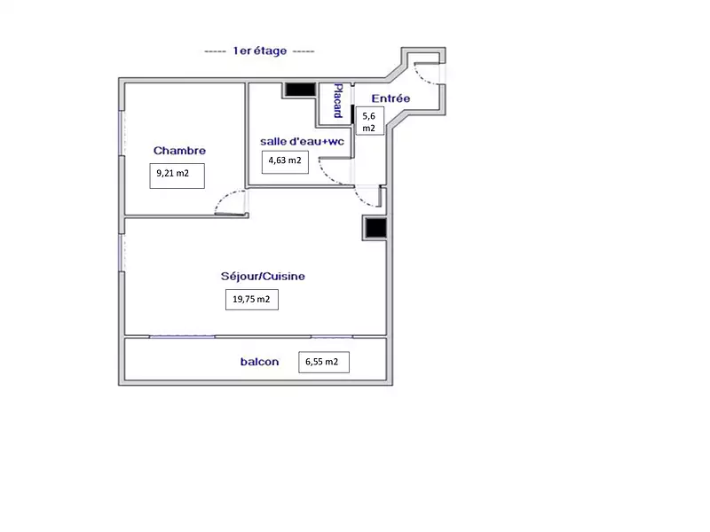
Venez visiter cet appartement de 40 m2 AVEC BALCON de 6m2 et PLACE DE PARKING PRIVATIVE.
Cet appartement vous propose une GRANDE ENTRÉE avec PLACARD, une pièce de vie LUMINEUSE avec cuisine aménagée et équipée OUVERTE sur le salon, une CHAMBRE ENTIÈREMENT REFAITE RÉCEMMENT et une salle d’eau SPACIEUSE avec WC. La pièce de vie s’ouvre sur un AGRÉABLE BALCON.
Une place de parking privative complète ce bien.
**SES ATOUTS ** : Localisation recherchée (Transports et Commerces) / Résidence de charme de 2 étages / Appartement LUMINEUX ET BIEN ENTRETENU / FENÊTRES PVC DOUBLE VITRAGE avec VOLETS ROULANTS / Très bonne isolation (DPE GES : A) / Faibles charges de copropriété.
À VISITER SANS TARDER !
Conseillère immobilier disponible 7j/7
La presente annonce immobiliere vise 2 lots situés dans une copropriété de 163 lots au total et ne faisant l'objet d'aucune procédure en cours citée à l'article L. 721-1 du code de la construction et de l'habitation. Montant moyen mensuel de charges déclaré par le vendeur : 78.67€ par mois (soit 944 € annuel). Honoraires d'agence à la charge de l'acquéreur. Prix honoraires inclus : 159000 euros. Prix hors honoraires : 152000 euros. Honoraires TTC à la charge de l'acquéreur (4,61% du prix du bien hors honoraires) : 7000 euros.
Information d'affichage énergétique sur ce bien : classe ENERGIE D indice 222 et classe CLIMAT A indice 6. Les informations sur les risques auxquels ce bien est exposé, y compris l'obligation légale de débroussaillement, sont disponibles sur le site Géorisques : http://www.georisques.gouv.fr.
La présente annonce immobilière a été rédigée sous la responsabilité éditoriale de Mme Myriam MICELI mandataire indépendant en immobilier (sans détention de fonds), agent commercial de la SAS I@D France immatriculé au RSAC de CRETEIL sous le numéro 893685313, titulaire de la carte de démarchage immobilier pour le compte de la société I@D France SAS.
Afficher plus

Publiée le 08/07/2025 - maj le 09/11/2025 - Réf. agence : 1805915 - Réf Superimmo : ANVXZ0CQ9
Vous rencontrez un problème sur le site ?
Merci de nous signaler le problème
Caractérisques
Prix de vente : 159 000 € Prix en baissePrix au m² : 3 975 € / m²
Charges prévisionnelles : 944 € / an

Honoraires à la charge du vendeur. Barème d’honoraires : voir le barème

40 m² - 2 pièces - 1 chambreÉtage 1/3
1 balconAnnée de construction : 1999
Chauffage individuel électriqueDigicode - Interphone
Copropriété de 163 lots
Bilan énergétique Étiquette climat-énergie : D

Consommation d'énergie

Consommation
222 kWh/m².an
Logement très performantLogement extrêmement consommateur d'énergie

Émission de gaz à effet de serre

Peu d’émissions de CO2
A
B
C
D
E
F
G
6 kgeqCO2/m²/an
Émissions de CO2 très importante

Montant estimé des dépenses annuelles d’énergie pour un usage standard (année(s) de référence : 2021)
Minimum : 770 € / an
Maximum : 1 100 € / an

Diagnostics réalisés le 19/03/2025.

Intéressez par ce type de bien ?
Pour recevoir par email les annonces similaires
CRÉER UNE ALERTE
Historique des prix
9 novembre 2025

Baisse de 3,6%

159 000 €
20 septembre 2025

Baisse de 3,5%

165 000 €
8 juillet 2025
171 000 €
Localisation
DEMANDER L’ADRESSE
Cette annonce vous est proposée par :
41 avis clients
06 63 22 35 44 Appelez de la part de Superimmo.com

Vos informations sont transmises directement à l'agent afin qu’il traite votre demande.

Annonces similaires
Autres recherches

tous les appartements de 2 pièces à La Queue-en-Brie

Gérer les cookies

Superimmo.com utilise des cookies pour vous offrir une expérience utilisateur de qualité, mesurer l’audience du site et améliorer les services proposés.

En cliquant sur « ACCEPTER », vous acceptez l’utilisation des cookies dans les conditions prévues par notre Charte des données. Si vous souhaitez vous pouvez gérer les cookies.