06 80 36 41 91 Appelez de la part de Superimmo.com

Vos informations sont transmises directement à l'agence afin qu'elle traite votre demande. Voir notre charte des données personnelles.

Contacter par email
Description

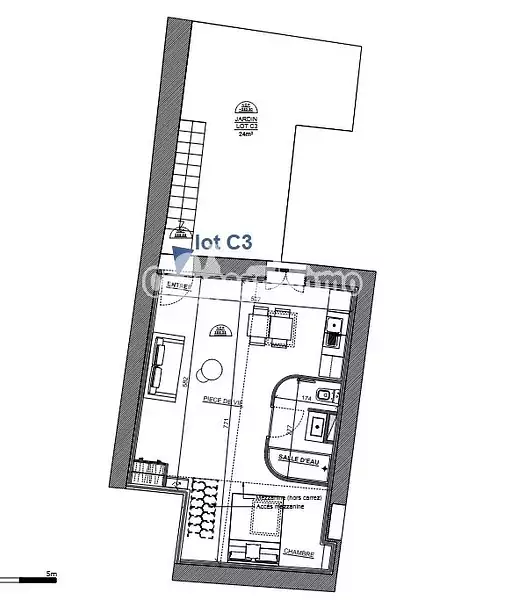
APPARTEMENT T1
CAMPAGN'IMMO vous propose de découvrir, cet appartement de 37.2 m² habitables, pour une surface totale au sol de 66.3 m².
Vous pourrez profiter d'une pièce de vie, d'une salle d'eau avec wc, d'une mezzanine pour le coin nuit et d'une agréable terrasse d’environ 24m².
Bien soumis au régime de la copropriété.
Contactez-nous pour une visite!

Publiée le 31/10/2025 - maj le 04/12/2025 - Réf. agence : 5218-C3 - Réf Superimmo : ANVXZS9FH
Vous rencontrez un problème sur le site ?
Merci de nous signaler le problème
Caractérisques
Prix de vente : 149 000 €Prix au m² : 4 005 € / m²

Honoraires à la charge du vendeur. Barème d’honoraires : voir le barème

37,2 m² - 2 pièces1er étage
Intéressez par ce type de bien ?
Pour recevoir par email les annonces similaires
CRÉER UNE ALERTE
Localisation
DEMANDER L’ADRESSE
Cette annonce vous est proposée par :
187 avis clients
06 80 36 41 91 Appelez de la part de Superimmo.com

Vos informations sont transmises directement à l'agence afin qu'elle traite votre demande. Voir notre charte des données personnelles.

Autres recherches

tous les appartements de 2 pièces à Tarare