05 59 11 11 00 Appelez de la part de Superimmo.com

Vos informations sont transmises directement à l'agence afin qu'elle traite votre demande. Voir notre charte des données personnelles.

Contacter par email
Description

POUR INVESTISSEUR À VENDRE APPARTEMENT LOUER 550 Euros en bail meublé – Beau T2 rénové de 34 m² – Hypercentre de Pau – 106 500 €
En plein cœur de Pau, dans une rue à sens unique au calme, découvrez ce charmant T2 rénové de 34 m², situé au 2ᵉ étage d'une petite copropriété bien entretenue.
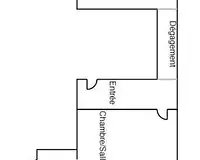
L'appartement se compose d'un séjour lumineux, d'une cuisine ouverte, d'une chambre confortable, d'une salle d'eau et de WC séparés. Il bénéficie d'un chauffage individuel électrique, du double vitrage, et affiche un DPE en D, garantissant un bon confort thermique.
La taxe foncière est de 652 € et les charges de copropriété s'élèvent à 631 € par an.
Un bien idéal pour un premier achat, un pied-à-terre ou un investissement locatif, à deux pas de toutes les commodités du centre-ville.
Ne manquez pas cette opportunité d'acquérir un appartement au cœur de Pau. Prenez rendez-vous avec Maxime Pierret au 06 10 48 21 01. (RSAC 523 324 713)
Référence agence : 6469

Publiée le 28/05/2025 - maj le 04/09/2025 - Réf. agence : YNXO-A9W-ZP8 - Réf Superimmo : ANVXYNJ8Q
Vous rencontrez un problème sur le site ?
Merci de nous signaler le problème
Caractérisques
Prix de vente : 106 500 €Prix au m² : 3 132 € / m²
Charges prévisionnelles : 631 € / anTaxe foncière : 652 €

Honoraires à la charge du vendeur - 8 793,58 € TTC inclus dans le prix de vente - Prix hors honoraires : 97 706,42 €. Barème d’honoraires : voir le barème

34 m² - 2 pièces - 1 chambre2ème étage
Assainissement : tout à l'égoutChauffage individuel électrique
1 salle d'eau - 1 salle de bain1 wc
Fenêtres double vitrage
Bilan énergétique Étiquette climat-énergie : D

Consommation d'énergie

Consommation
221 kWh/m².an
Logement très performantLogement extrêmement consommateur d'énergie

Émission de gaz à effet de serre

Peu d’émissions de CO2
A
B
C
D
E
F
G
7 kgeqCO2/m²/an
Émissions de CO2 très importante

Montant estimé des dépenses annuelles d’énergie pour un usage standard (année(s) de référence : 2021)
Minimum : 524 € / an
Maximum : 708 € / an

Diagnostics réalisés le 18/01/2022.

Intéressez par ce type de bien ?
Pour recevoir par email les annonces similaires
CRÉER UNE ALERTE
Localisation
DEMANDER L’ADRESSE
Cette annonce vous est proposée par :
634 avis clients
05 59 11 11 00 Appelez de la part de Superimmo.com

Vos informations sont transmises directement à l'agence afin qu'elle traite votre demande. Voir notre charte des données personnelles.

Autres recherches

tous les appartements de 2 pièces à Pau