06 51 95 01 19 Appelez de la part de Superimmo.com

Vos informations sont transmises directement à l'agence afin qu'elle traite votre demande. Voir notre charte des données personnelles.

Contacter par email
Description

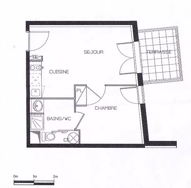
À Toulouse 31200, chemin de la croix bénite, devenez propriétaire d'un 2 pièces avec une charmante terrasse de 5m2 et d'un garage privatif en sous-sol.La date de construction : 2012.Tout électrique avec cumulus. Il s'agit d'un appartement se trouvant au rez-de-chaussée sur-élevé vue jardin et sécurisé. Ce type de logement est parfaitement adapté à un premier achat immobilier que cela soit pour la résidence principale ou un investissement locatif. L'espace intérieur comprend une salle d'eau, d'un Wc séparé, une pièce à vivre 16.39m2 avec un espace kitchenette équipée, une chambre avec placard. Sa superficie intérieure habitable développe 31m2 en loi Carrez. Le calme du lieu est assuré grâce aux fenêtres à double vitrage. Dehors, l'habitation s'accompagne d'une terrasse d'une surface de 5m2, ce qui porte la surface à vivre à 36m2. Le prix s'élève à 100 000 euros incluant les frais d'agence au forfait de 5 000€ à la charge acquéreur soit 95 000.00€ net vendeur. L'appartement est vendu sans locataire. Le règlement de copropriété accepte les sociétés qui ne reçoivent pas de public, sans nuisance, et sans matériel toxique. Ce bien est situé à 200m des commerces et services du centre ville de Aucamville.
Transaction ouverte aux partenariats: mandat de recherche, mandat de délégation, etc
Vendu libre de toute occupation.
Appartement parfaitement entretenu et fonctionnel.
--------------------------------------------------------------------
C'est l'immobilier d'habitation dans l'ancien, le neuf et le réhabilité pour votre résidence principale, secondaire et l'investissement locatif. C'est votre agence à la carte! Prestations de géobiologie et diagnostics d'expositions aux ondes néfastes d'un bien ou d'un terrain. Possibilité d'étude financière pour le financement d'un bien ou de rénovation.
Votre domicile est-il exposé aux ondes électromagnétiques hautes et basses fréquences sans le savoir ?
Nous vivons entourés d’ondes invisibles qui peuvent perturber notre bien-être, notre santé
Diagnostic-Exposition-Ondes-Habitat
Diagnostic-Conseils Préconisation de protection sur Mesure pour un habitat sain
- Annonce rédigée et publiée par un Agent Mandataire -

Maj le 25/09/2025 - Réf. agence : LSVAP890024720 - Réf Superimmo : ANVXX8VVC
Vous rencontrez un problème sur le site ?
Merci de nous signaler le problème
Caractérisques
Prix de vente : 100 000 € Prix en baissePrix au m² : 3 226 € / m²

Honoraires à la charge de l'acquéreur : 5,26% TTC - 5 000 € TTC inclus dans le prix de vente. Barème d’honoraires : voir le barème

31 m² - 2 pièces - 1 chambreAvec ascenseur
Orientation : Est1 Garage
Année de construction : 2012Séjour de 16 m²
1 salle d'eau1 wc
Bilan énergétique

Consommation d'énergie (DPE)

Logement très performant
A
B
C
D
E
F
G
179 kWh/m²/an
Logement extrêmement consommateur d’énergie

Émission de gaz à effet de serre (GES)

Peu d’émissions de CO2
A
B
C
D
E
F
G
5 kgeqCO2/m²/an
Émissions de CO2 très importante

Diagnostics réalisés le 25/05/2020.

Intéressez par ce type de bien ?
Pour recevoir par email les annonces similaires
CRÉER UNE ALERTE
Historique des prix
4 juillet 2025

Baisse de 4,8%

100 000 €
2 juillet 2025

hausse de 10,5%

105 000 €
16 mai 2025

Baisse de 9,5%

95 000 €
6 mai 2025
105 000 €
Localisation
DEMANDER L’ADRESSE
Cette annonce vous est proposée par :
06 51 95 01 19 Appelez de la part de Superimmo.com

Vos informations sont transmises directement à l'agence afin qu'elle traite votre demande. Voir notre charte des données personnelles.

Autres recherches

tous les appartements de 2 pièces à Toulouse