06 34 42 48 47 Appelez de la part de Superimmo.com

Vos informations sont transmises directement à l'agent afin qu’il traite votre demande.

Contacter par email
Description

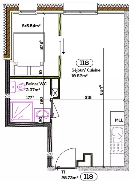
Appartement de 28,73 m² composé d'un séjour-cuisine, d'un dortoir et d'une salle de bains avec WC.
Des prestations de qualité pour un confort optimal : triple vitrage, isolation par l'extérieur et chauffage au sol via pompe à chaleur collective.
Possibilité d'acheter en plus un garage et/ou place de parking.
Un emplacement stratégique à 3 minutes de la gare, permettant de rejoindre Lyon en 1 heure et Genève en 43 minutes.
Une offre locative très limitée sur le secteur, garantissant une forte demande.
La proximité des commerces et un environnement résidentiel de qualité.
A votre écoute et disposition pour en discuter et vous apporter un complément d'information.
Les informations sur les risques auxquels ce bien est exposé sont disponibles sur le site Géorisques : www. georisques. gouv. fr.
Réseau Immobilier CAPIFRANCE - Votre agent commercial (RSAC N°851 001 537 - Greffe de CHAMBERY) Flora ULMSCHNEIDER Entrepreneur Individuel 06 34 42 48 47 - Réf.304121

Publiée le 04/12/2025 - Réf. agence : 340931054818 - Réf Superimmo : ANVX100NTL
Vous rencontrez un problème sur le site ?
Merci de nous signaler le problème
Caractérisques
Prix de vente : 104 600 €Prix au m² : 3 607 € / m²

Honoraires à la charge du vendeur. Barème d’honoraires : voir le barème

Disponible immédiatement29 m² - 1 pièce
2ème étage Orientation : Nord, Nord-Ouest, Est, Ouest
1 salle de bain
Intéressez par ce type de bien ?
Pour recevoir par email les annonces similaires
CRÉER UNE ALERTE
Localisation
DEMANDER L’ADRESSE
Cette annonce vous est proposée par :
38 avis clients
06 34 42 48 47 Appelez de la part de Superimmo.com

Vos informations sont transmises directement à l'agent afin qu’il traite votre demande.

Autres recherches

tous les appartements de 1 pièce dans l'Ain