06 62 11 20 06 Appelez de la part de Superimmo.com

Vos informations sont transmises directement à l'agent afin qu’il traite votre demande.

Contacter par email
Description

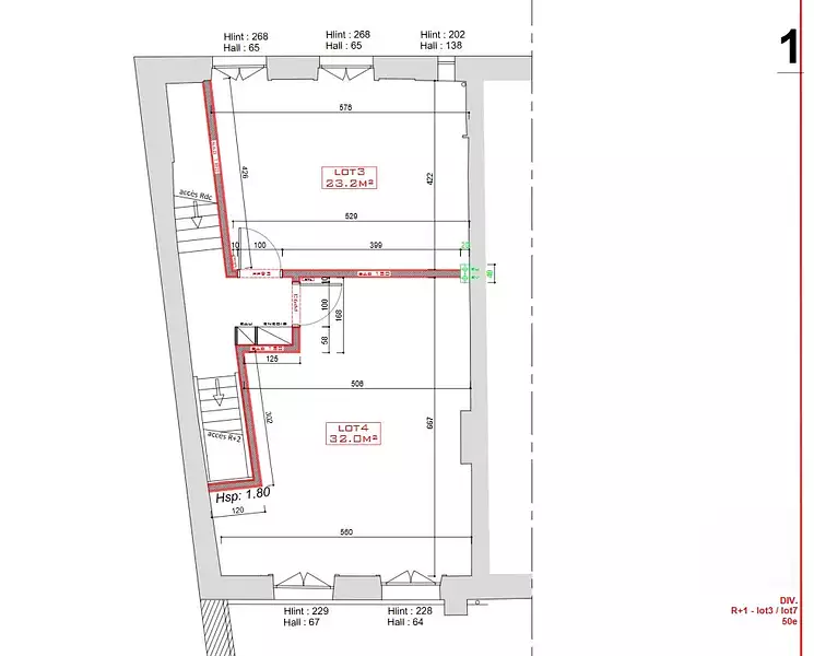
PLATEAUX BRUTS A AMENAGER
.PLATEAUX BRUTS À AMÉNAGER (23-30 m²) - IDÉAL INVESTISSEMENT LOCATIF ÉTUDIANT - SECTEUR CALME ET PRATIQUE !
Dans un charmant immeuble en pierre, découvrez nos plateaux à aménager, offrant des surfaces de 23 m² à 30 m². Bénéficiez d'un emplacement idéal à proximité de la faculté et du centre commercial Centre Deux, dans un secteur calme très prisé par les étudiants.
Caractéristiques :
Plateaux livrés prêts à être aménagés : GTL installée (fluides en attente), dalle béton récente.
Liberté totale d'aménagement intérieur : créez des espaces optimisés et personnalisés.
Possibilité de bénéficier d'un déficit foncier (informations sur demande).
Situation géographique idéale pour la location étudiante.
Ces plateaux représentent une opportunité unique de réaliser un investissement locatif sur mesure dans un secteur dynamique. N'hésitez pas à nous contacter pour organiser une visite et découvrir le potentiel de ces biens. Spécial investisseur ou premier achat.'(pas de DPE pas de système de chauffage). Cette annonce immobilière a été rédigée sous la responsabilité éditoriale de l'agent commercial mandataire immobilier Corinne MAKOUA.

Publiée le 28/02/2025 - maj le 29/11/2025 - Réf. agence : 10498 - Réf Superimmo : ANVXXZ5W3
Vous rencontrez un problème sur le site ?
Merci de nous signaler le problème
Caractérisques
Prix de vente : 27 840 €Prix au m² : 1 210 € / m²

Honoraires à la charge du vendeur. Barème d’honoraires : voir le barème

23 m² - 1 pièce - 1 chambre1er étage
Vue dégagée
Intéressez par ce type de bien ?
Pour recevoir par email les annonces similaires
CRÉER UNE ALERTE
Localisation
DEMANDER L’ADRESSE
Cette annonce vous est proposée par :
06 62 11 20 06 Appelez de la part de Superimmo.com

Vos informations sont transmises directement à l'agent afin qu’il traite votre demande.

Autres recherches

tous les appartements de 1 pièce à Saint-Étienne