06 84 40 81 09 Appelez de la part de Superimmo.com

Vos informations sont transmises directement à l'agence afin qu'elle traite votre demande. Voir notre charte des données personnelles.

Contacter par email
Description

Thomas EZQUERRA, vous invite à découvrir ce magnifique appartement à rénover, idéalement situé à deux pas de la mairie du XVIème arrondissement et à proximité des charmants commerces de la rue de la Pompe.
Ideal Professions Libérales : Avocat, Notaire, Expert-Comptable, Médecin, Chirurgien-dentiste, Infirmier libéral, cabinet Médical etc...
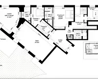
Avec une surface au sol généreuse de 220 m² et une superficie Carrez de 201,43 m², cet espace offre de nombreuses possibilités d'aménagement. Profitez de la flexibilité de créer 3 à 4 chambres selon vos besoins, ce qui en fait un bien parfait pour les familles ou les investisseurs souhaitant valoriser leur patrimoine.
L'appartement se distingue par ses volumes impressionnants, avec une hauteur sous plafond de 4,20 m, créant une atmosphère lumineuse et aérée. De plus, vous serez séduit par le grand jardin de 172 m², un véritable havre de paix en plein cœur de la ville, idéal pour profiter de moments de détente ou de convivialité.
Pour votre confort, un parking dans l'immeuble est proposé en supplément au prix de 50 000 €, un atout précieux dans ce quartier animé.
Les travaux de rénovation sont estimés à 300 000 €, offrant ainsi l'opportunité de personnaliser cet appartement selon vos goûts et vos envies.
Ne manquez pas cette occasion unique de réaliser un bien d'exception dans un secteur recherché.
Contactez moi au 06.84.40.81.09 pour organiser une visite.
TF 4339€ / Charges Mensuel 1380€ ( Gardien, Ascenseur, Chauffage, Eau Froide, )
Les informations sur les risques auxquels ce bien est exposé sont disponibles sur le site Géorisques : www.georisques.gouv.fr

Publiée le 16/06/2025 - maj le 20/11/2025 - Réf. agence : 873 - Réf Superimmo : ANVXYT0VL
Vous rencontrez un problème sur le site ?
Merci de nous signaler le problème
Caractérisques
Prix de vente : 3 500 000 € Prix en baissePrix au m² : 17 413 € / m²
Charges prévisionnelles : 16 520,04 € / anTaxe foncière : 4 300 €

Honoraires à la charge de l'acquéreur : 3,4% TTC - 100 000 € TTC inclus dans le prix de vente - Prix hors honoraires : 3 400 000 €.

201 m² - 6 pièces - 4 chambresRez-de-chaussée
Avec ascenseurOrientation : Nord
TerrasseGardien
Chauffage collectifSéjour de 48 m²
Jardin privatifParquet
Copropriété de 25 lots
Intéressez par ce type de bien ?
Pour recevoir par email les annonces similaires
CRÉER UNE ALERTE
Historique des prix
11 novembre 2025

Baisse de 4,1%

3 500 000 €
16 juin 2025
3 650 000 €
Localisation
DEMANDER L’ADRESSE
Cette annonce vous est proposée par :
06 84 40 81 09 Appelez de la part de Superimmo.com

Vos informations sont transmises directement à l'agence afin qu'elle traite votre demande. Voir notre charte des données personnelles.

Autres recherches

tous les appartements à rénover à Paris