05 58 82 11 11 Appelez de la part de Superimmo.com

Vos informations sont transmises directement à l'agence afin qu'elle traite votre demande. Voir notre charte des données personnelles.

Contacter par email
Description

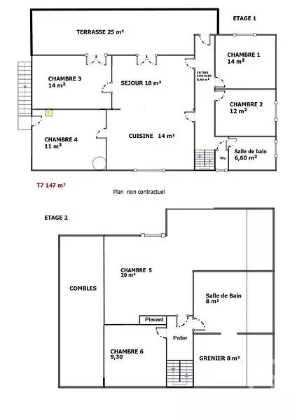
Grand appartement de type T7 sur deux niveaux d'environ 140 m², situé à MIMIZAN PLAGE, à quelques 1,5 kms des plages et à 200m des pistes cyclables, dans un environnement protégé, boisé et très calme.Il comprend, une entrée, six grandes chambres, dont 2 à l'étage, un vaste salon/séjour très lumineux, une cuisine indépendante, une salle de bains, une salle d'eau, un wc , ainsi que des combles aménageables.Cet appartement nécessite un rafraichissement, ce qui vous permettra de le personnaliser, selon vos goûts et vos envies, et, qui reflètera votre style de vie.La présence d'une terrasse de 25 m² sera un atout non négligeable pour pouvoir profiter des soirées ensoleillées ou simplement pour vous détendre. De plus il dispose d'un jardinet d'environ 100 m².Cet appartement muni de 2 entrées, peut être divisé en 1 T3 + 1 T4 ou un Studio + 1 T6. le bien serait parfait pour une famille nombreuse ou une location saisonnière. Le tout pourrait recevoir de 14 à 20 couchages. trés bon rendement locatif.Avec son emplacement et ses caractéristiques, cet appartement sera une opportunité unique à ne pas manquer pour tous ceux qui cherchent un logement à rénover et à personnaliser, dans un cadre de vie paisible et naturel, entouré de forêts.

Publiée le 17/09/2025 - maj le 18/11/2025 - Réf. agence : Ref : 7189 - Réf Superimmo : ANVXZGYIY
Vous rencontrez un problème sur le site ?
Merci de nous signaler le problème
Caractérisques
Prix de vente : 229 000 € Prix en baissePrix au m² : 1 696 € / m²
Charges prévisionnelles : 250 € / an

Barème d’honoraires : voir le barème

135 m² - 7 piècesAnnée de construction : 1970
Copropriété de 3 lots
Intéressez par ce type de bien ?
Pour recevoir par email les annonces similaires
CRÉER UNE ALERTE
Historique des prix
10 novembre 2025

Baisse de 4,2%

229 000 €
2 novembre 2025

Baisse de 4%

239 000 €
21 octobre 2025

Baisse de 4,2%

249 000 €
17 septembre 2025
260 000 €
Localisation
DEMANDER L’ADRESSE
Cette annonce vous est proposée par :
05 58 82 11 11 Appelez de la part de Superimmo.com

Vos informations sont transmises directement à l'agence afin qu'elle traite votre demande. Voir notre charte des données personnelles.

Autres recherches

tous les appartements à rénover dans les Landes