PERRIGNY LES DIJON réseau Divia/ Rocade/commerces et écoles à proximité.Venez découvrir cette jolie maison moderne au toit plat et aux belles prestations.Le bien est fait de la façon...
Century 21 Martinot Immobilier
21000 Dijon
Century 21 Martinot Immobilier
21000 Dijon
Ventes (56)
OUGES Réseau Divia à 3 minutes de Longvic.Venez découvrir cette jolie maison récente dans un environnement calme, apaisant en retrait de la rue.Cette maison est faite de la façon suivante...
CHENOVE Herriot proche école et de tous les commerces ainsi que du Tram.Venez découvrir ce joli appartement refait avec goût au 4è étage avec ascenseur dans une copropriété avec parking...
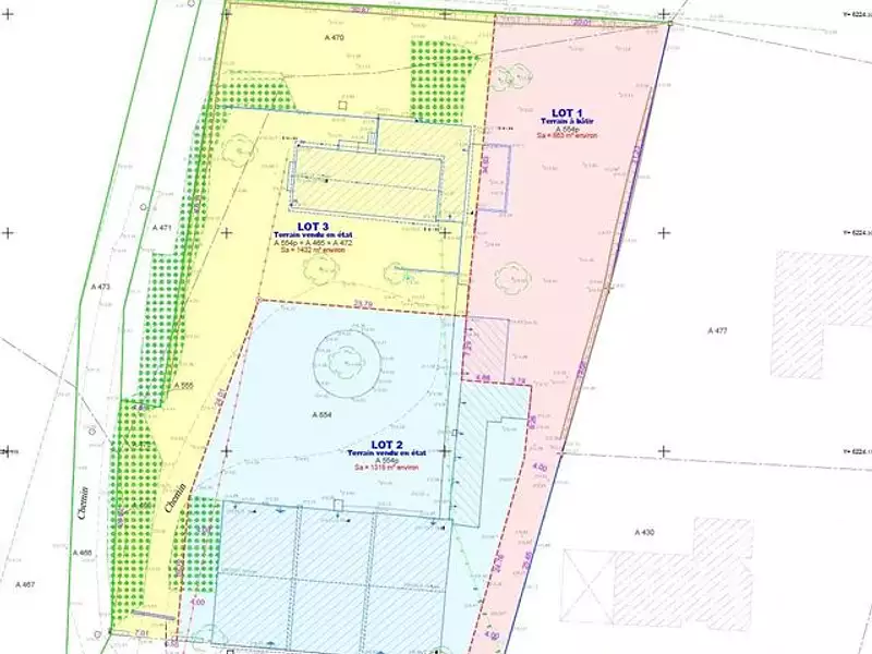
Broindon (20 min Dijon)Venez découvrir ce charmant terrain hors lotissement de plus de 800m2 (Lot 1).La parcelle avec accès individuel est non viabilisée et sera à la charge des...
Découvrez cet appartement type 1 meublé comprenant pièce de vie cuisine ouverte, salle de douche idéalement situé à Dijon parfait pour un investissement locatif. Avec ses 27.17 m²...
Dijon DRAPEAU/ Maladière / Chanzy proximité TRAM Dans une copropriété en retrait de la rue, studio vendu loué, situé au 2ème étage sans ascenseur, comprenant : une entrée avec placard, un...