Acheter un terrain à Pleslin-Trigavou (22490)

Modifier ma recherche
7 annonces
RANCE IMMO
Annonce publiée le 05/12/2024 - mise à jour 07/05/2025
Proposée par RANCE IMMO 05/12/2024 - mise à jour 07/05/2025
5
Terrain

Nous contacter
Terrain

Pleslin-Trigavou (22490)

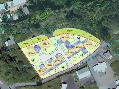
ECOQUARTIER DU PIGEON BLANC RANCE IMMO vous propose cinq terrains constructibles au cœur de la sympathique commune de PLESLIN-TRIGAVOU. Vous vous sentez concernés par la transition écologique, le développement durable, le respect de l'environnement, vous êtes convaincus qu'il est possible de mieux vivre ensemble, alors venez nous rejoindre dans ce magnifique projet, à deux pas des commerces et services dans un environnement harmonieusement végétalisé. Votre future maison sera en bois, elle pourra être productrice d'énergie électrique grâce à l'installation de panneaux photovoltaïques, suivant un cahier des charges et un règlement graphique spécifique. Cinq lots à bâtir, libres de constructeurs. Lot n°6 - Superficie 393m² - Prix net vendeur 117 900€ - Honoraires d'agence charge acquéreur 4 000€ Soit 121 900€ Lot n°7 - Superficie 330m² - Prix net vendeur 106 417€ - Honoraires d'agence charge acquéreur 4 000€ Soit 110 417€ Lot n°8 - Superficie 160m² - Prix net vendeur 46 690€ - Honoraires d'agence charge acquéreur 4 000€ Soit 50 690€ Lot n°15 - Superficie 148m² - Prix net vendeur 44 117€ - Honoraires d'agence charge acquéreur 4 000€ Soit 48 117€ Lot n°23 - Superficie 293m² - Prix net vendeur 94 717€ - Honoraires d'agence charge acquéreur 4 000€ Soit 98 717€ L’Agence Rance Immo vous accueille du lundi au samedi au 9 route de lyvet à la VICOMTE SUR RANCE pour l’achat, la vente, la location, la gestion d’une maison, d’un appartement, d’un terrain. Contactez l’Agence Rance Immo au 02 96 83 32 45 pour une estimation gratuite de votre bien… Plus de photos et de renseignements sur notre site : Nous sommes là pour vous accompagner sereinement sur votre projet !

Agent immobilier ?
Diffusez GRATUITEMENT toutes vos annonces sur Superimmo.com
Sandrine BOUZELOC - Optimhome
Annonce publiée le 05/06/2025
Proposée par Sandrine BOUZELOC - Optimhome 05/06/2025
5
Terrain, 291 m²

99 717 € 343 €/m²
Terrain • 291 m²

Pleslin-Trigavou (22490)

Sandrine BOUZELOC Optimhome immobilier vous propose à la vente sur la commune de Pleslin-Trigavou au sein de l'Écoquartier du Pigeon Blanc. Terrain à bâtir d'une superficie d'environ 291 m² (lot N°23) Située au cœur du triangle Dinan / Dinard / Saint-Malo, Pleslin-Trigavou est une commune dynamique qui met l'accent sur un développement durable pour préserver sa qualité de vie. L'Écoquartier du Pigeon Blanc incarne cette vision : vivre mieux et ensemble, tout en respectant l'environnement. Ce havre de paix est proche des commerces, de la mairie, de la médiathèque, des services et des écoles. Construire sa maison dans l'écoquartier permet de tout faire à pied, tout en profitant de la voie verte et du patrimoine local, comme l'alignement mégalithique du « Champs des Roches ». Ambitions environnementales L'écoquartier du Pigeon Blanc, se donne comme ambition d'être un quartier résolument en phase avec les enjeux de transition écologique. Cela passe également par une forte attention à la qualité environnementale des constructions. Outre une bonne isolation et une conception bioclimatique, le bois sera le matériau principal. D'autres matériaux bio et géosourcés (paille, terre, bois, etc.) pourront être mis en œuvre, autant dans le gros œuvre que dans le second œuvre. Par ailleurs, la commune sera très attentive à la qualité des détails et à la mise en œuvre, notamment sur tous les dispositifs (larmiers, appuis de fenêtre, seuils, etc.) qui garantiront la pérennité de l'ouvrage dans le temps. Les honoraires d'agence sont à la charge de l'acquéreur, soit 5,28% TTC du prix hors honoraires. Les informations sur les risques auxquels ce bien est exposé sont disponibles sur le site Géorisques : www. georisques. gouv. fr. Contactez Sandrine BOUZELOC Entrepreneur Individuel, Agent commercial OptimHome (RSAC N°450 917 711 Greffe de SAINT MALO) 06 03 61 41 34 (réf. 571274 )

Sandrine BOUZELOC - Optimhome
Annonce publiée le 05/06/2025 - mise à jour 31/07/2025
Proposée par Sandrine BOUZELOC - Optimhome 05/06/2025 - mise à jour 31/07/2025
5
Terrain, 394 m²

122 900 € 312 €/m²
Terrain • 394 m²

Pleslin-Trigavou (22490)

Sandrine BOUZELOC Optimhome immobilier vous propose à la vente sur la commune de Pleslin-Trigavou au sein de l'Écoquartier du Pigeon Blanc. Terrain à bâtir d'une superficie d'environ 394m² (lot N°6) Située au cœur du triangle Dinan / Dinard / Saint-Malo, Pleslin-Trigavou est une commune dynamique qui met l'accent sur un développement durable pour préserver sa qualité de vie. L'Écoquartier du Pigeon Blanc incarne cette vision : vivre mieux et ensemble, tout en respectant l'environnement. Ce havre de paix est proche des commerces, de la mairie, de la médiathèque, des services et des écoles. Construire sa maison dans l'écoquartier permet de tout faire à pied, tout en profitant de la voie verte et du patrimoine local, comme l'alignement mégalithique du « Champs des Roches ». Ambitions environnementales L'écoquartier du Pigeon Blanc, se donne comme ambition d'être un quartier résolument en phase avec les enjeux de transition écologique. Cela passe également par une forte attention à la qualité environnementale des constructions. Outre une bonne isolation et une conception bioclimatique, le bois sera le matériau principal. D'autres matériaux bio et géosourcés (paille, terre, bois, etc.) pourront être mis en œuvre, autant dans le gros œuvre que dans le second œuvre. Par ailleurs, la commune sera très attentive à la qualité des détails et à la mise en œuvre, notamment sur tous les dispositifs (larmiers, appuis de fenêtre, seuils, etc.) qui garantiront la pérennité de l'ouvrage dans le temps. Les honoraires d'agence sont à la charge de l'acquéreur, soit 4,24% TTC du prix hors honoraires. Les informations sur les risques auxquels ce bien est exposé sont disponibles sur le site Géorisques : www. georisques. gouv. fr. Contactez Sandrine BOUZELOC Entrepreneur Individuel, Agent commercial OptimHome (RSAC N°450 917 711 Greffe de SAINT MALO) 06 03 61 41 34 (réf. 571270 )

Sandrine BOUZELOC - Optimhome
Annonce publiée le 05/06/2025
Proposée par Sandrine BOUZELOC - Optimhome 05/06/2025
5
Terrain, 332 m²

111 417 € 336 €/m²
Terrain • 332 m²

Pleslin-Trigavou (22490)

Sandrine BOUZELOC Optimhome immobilier vous propose à la vente sur la commune de Pleslin-Trigavou au sein de l'Écoquartier du Pigeon Blanc. Terrain à bâtir d'une superficie d'environ 332 m² (lot N°7) Située au cœur du triangle Dinan / Dinard / Saint-Malo, Pleslin-Trigavou est une commune dynamique qui met l'accent sur un développement durable pour préserver sa qualité de vie. L'Écoquartier du Pigeon Blanc incarne cette vision : vivre mieux et ensemble, tout en respectant l'environnement. Ce havre de paix est proche des commerces, de la mairie, de la médiathèque, des services et des écoles. Construire sa maison dans l'écoquartier permet de tout faire à pied, tout en profitant de la voie verte et du patrimoine local, comme l'alignement mégalithique du « Champs des Roches ». Ambitions environnementales L'écoquartier du Pigeon Blanc, se donne comme ambition d'être un quartier résolument en phase avec les enjeux de transition écologique. Cela passe également par une forte attention à la qualité environnementale des constructions. Outre une bonne isolation et une conception bioclimatique, le bois sera le matériau principal. D'autres matériaux bio et géosourcés (paille, terre, bois, etc.) pourront être mis en œuvre, autant dans le gros œuvre que dans le second œuvre. Par ailleurs, la commune sera très attentive à la qualité des détails et à la mise en œuvre, notamment sur tous les dispositifs (larmiers, appuis de fenêtre, seuils, etc.) qui garantiront la pérennité de l'ouvrage dans le temps. Les honoraires d'agence sont à la charge de l'acquéreur, soit 4,70% TTC du prix hors honoraires. Les informations sur les risques auxquels ce bien est exposé sont disponibles sur le site Géorisques : www. georisques. gouv. fr. Contactez Sandrine BOUZELOC Entrepreneur Individuel, Agent commercial OptimHome (RSAC N°450 917 711 Greffe de SAINT MALO) 06 03 61 41 34 (réf. 571271 )

GROUPE VIABILIS
Annonce publiée le 03/03/2025 - mise à jour 22/09/2025
Proposée par GROUPE VIABILIS 03/03/2025 - mise à jour 22/09/2025
1
Terrain, 307 m²

63 000 € 205 €/m²
Terrain • 307 m²

Pleslin-Trigavou (22490)

Lotissement "Le Hameau de la Fontenaie" > 9 lots viabilisés et libres de constructeur > De 307 à 486 m² > A partir de 63000 € Commodités : - Education : 3 écoles maternelles et élémentaires, un collège et une crèche à Plouër-sur-Rance (4,8 km). Un lycée à Dinan (8,3 km) - Services de santé : médecins, pharmacies, dentistes, infirmiers et service d'urgences à Dinan (8,3 km) - Commerces : épiceries, boulangeries, supermarché à Pleurtuit (5,9 km) et hypermarché à Plouër-sur-Rance (4,3 km) - Transports et loisirs : Restaurants, Gare SNCF à Plouër-sur-Rance (4,3 km) et l'aéroport de Pleurtuit (6,8 km) - Accès à Dinan (12.3km)-15min

Sandrine BOUZELOC - Optimhome
Annonce publiée le 05/06/2025
Proposée par Sandrine BOUZELOC - Optimhome 05/06/2025
5
Terrain, 161 m²

49 690 € 309 €/m²
Terrain • 161 m²

Pleslin-Trigavou (22490)

Sandrine BOUZELOC Optimhome immobilier vous propose à la vente sur la commune de Pleslin-Trigavou au sein de l'Écoquartier du Pigeon Blanc. Terrain à bâtir d'une superficie d'environ 161 m² (lot N°8) Située au cœur du triangle Dinan / Dinard / Saint-Malo, Pleslin-Trigavou est une commune dynamique qui met l'accent sur un développement durable pour préserver sa qualité de vie. L'Écoquartier du Pigeon Blanc incarne cette vision : vivre mieux et ensemble, tout en respectant l'environnement. Ce havre de paix est proche des commerces, de la mairie, de la médiathèque, des services et des écoles. Construire sa maison dans l'écoquartier permet de tout faire à pied, tout en profitant de la voie verte et du patrimoine local, comme l'alignement mégalithique du « Champs des Roches ». Ambitions environnementales L'écoquartier du Pigeon Blanc, se donne comme ambition d'être un quartier résolument en phase avec les enjeux de transition écologique. Cela passe également par une forte attention à la qualité environnementale des constructions. Outre une bonne isolation et une conception bioclimatique, le bois sera le matériau principal. D'autres matériaux bio et géosourcés (paille, terre, bois, etc.) pourront être mis en œuvre, autant dans le gros œuvre que dans le second œuvre. Par ailleurs, la commune sera très attentive à la qualité des détails et à la mise en œuvre, notamment sur tous les dispositifs (larmiers, appuis de fenêtre, seuils, etc.) qui garantiront la pérennité de l'ouvrage dans le temps. Les honoraires d'agence sont à la charge de l'acquéreur, soit 6,43% TTC du prix hors honoraires. Les informations sur les risques auxquels ce bien est exposé sont disponibles sur le site Géorisques : www. georisques. gouv. fr. Contactez Sandrine BOUZELOC Entrepreneur Individuel, Agent commercial OptimHome (RSAC N°450 917 711 Greffe de SAINT MALO) 06 03 61 41 34 (réf. 571272 )

AGENCE DIRECTE Côte d'Emeraude
Annonce publiée le 25/07/2025 - mise à jour 22/11/2025
Proposée par AGENCE DIRECTE Côte d'Emeraude 25/07/2025 - mise à jour 22/11/2025
1
Terrain, 343 m²

74 800 € 218 €/m²
Terrain • 343 m²

Pleslin-Trigavou (22490)

AGENCE DIRECTE Côte D'Emeraude vous propose en EXCLUSIVITE sur la commune de TRIGAVOU sur l'axe DINAN PLOUBALAY à 15 minutes de la mer, situé dans un petit lotissement de 6 lots seulement, reste deux terrains à bâtir de 343 M² et 453 M² libres de constructeur, les terrains sont viabilisés de 68 900 euros et 73 900 euros, frais de géomètre 600 euros. Prise de rendez-vous en ligne sur notre site internet agencedirecte com . Le prix de ce bien est Frais d'Agence Inclus. Diagnostics immobiliers remboursés en cas de vente par notre intermédiaire pour tout mandat simple ou exclusif contracté avant le 31/12/2024. Offre réservée aux vendeurs nous contactant spontanément Offre non cumulable Conditions en agence . Contactez-nous pour une estimation GRATUITE au 02.30.30.30.05 ! Les informations sur les risques auxquels ce bien est exposé sont disponibles sur le site Géorisques : www.georisques.gouv.fr AGENCE DIRECTE Emeraude 3,9% à Saint-Malo Gare, spécialiste des environs de Saint-Malo : Dinard, La Richardais, Pleurtuit, Saint-Lunaire, Saint-Briac, La Gouesnière, La Fresnais, Cancale, Saint-Méloir-des-Ondes, Saint-Guinoux, Saint-Coulomb, Saint-Jouan-des-Guérets, Saint-Père-Marc-en-Poulet, Chateauneuf-d'Ille-et-Vilaine, Saint-Suliac, La Ville-és-Nonais, Langrolay-sur-Rance, Plouer-sur-Rance, Miniac Morvan, Plerguer, Pleudihen-sur-Rance, Pleslin Trigavou, Saint-Samson-sur-Rance. - (8.56 % honoraires TTC à la charge de l'acquéreur.)