02 35 70 67 70 Appelez de la part de Superimmo.com
Utiliser DossierFacile


DossierFacile est le dossier de location numérique de l'Etat. Entièrement gratuit, conforme et sécurisé, il protège les locataires et rassure les propriétaires.

Vos informations sont transmises directement à l'agence afin qu'elle traite votre demande. Voir notre charte des données personnelles.

Contacter par email
Description

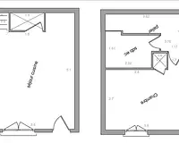
Référence du bien : CARP-FONT-1ER-LOT105 Le Cabinet Sauvage Gestion vous propose à la location un appartement non meublé de type f2 situé rue de Fontenelle à Rouen au 1er étage. Disponible dés le : 3 mars 2026. Comprenant : AU REZ-DE-CHAUSSEE - Séjour avec coin cuisine équipé A L'ETAGE : Palier, chambre (placard), salle de bains avec WC Valeur énergétique E. Chauffage individuel électrique Eau chaude individuelle électrique Eau froide collective collective avec répartition aux tantièmes Les informations sur les risques auxquels ce bien est exposé sont disponibles sur le site Géorisques : www.georisques.gouv.fr

Publiée le 05/12/2025 - Réf. agence : CARP-FONT-1ER-LOT105 - Réf Superimmo : ANLXO9IA4
Vous rencontrez un problème sur le site ?
Merci de nous signaler le problème
Caractérisques
Loyer : 500 € CCCharges : 40 € / mois
Dépôt de garantie : 460 €

Honoraires : 358,6 €. Barème d’honoraires : voir le barème

32,6 m² - 2 pièces - 1 chambreDernier étage (1er)
Séjour de 16 m²1 salle de bain
1 wc
Bilan énergétique Étiquette climat-énergie : E

Consommation d'énergie

Consommation
304 kWh/m².an
Logement très performantLogement extrêmement consommateur d'énergie

Émission de gaz à effet de serre

Peu d’émissions de CO2
A
B
C
D
E
F
G
9 kgeqCO2/m²/an
Émissions de CO2 très importante

Montant estimé des dépenses annuelles d’énergie pour un usage standard (année(s) de référence : 2021)
Minimum : 670 € / an
Maximum : 920 € / an

Diagnostics réalisés le 20/06/2023.

Intéressez par ce type de bien ?
Pour recevoir par email les annonces similaires
CRÉER UNE ALERTE
Localisation
DEMANDER L’ADRESSE
Cette annonce vous est proposée par :
02 35 70 67 70 Appelez de la part de Superimmo.com


DossierFacile est le dossier de location numérique de l'Etat. Entièrement gratuit, conforme et sécurisé, il protège les locataires et rassure les propriétaires.

Vos informations sont transmises directement à l'agence afin qu'elle traite votre demande. Voir notre charte des données personnelles.

Autres recherches

tous les appartements de 2 pièces à Rouen