06 20 53 24 21 Appelez de la part de Superimmo.com
Utiliser DossierFacile


DossierFacile est le dossier de location numérique de l'Etat. Entièrement gratuit, conforme et sécurisé, il protège les locataires et rassure les propriétaires.

Vos informations sont transmises directement à l'agence afin qu'elle traite votre demande. Voir notre charte des données personnelles.

Contacter par email
Description

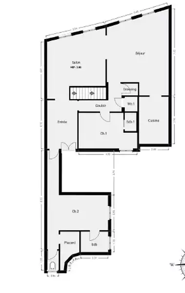
DUPLEX 4 CHAMBRES
Au cœur du quartier Europe, appartement de 4 chambres situé dans un immeuble ancien avec gardien, au ler étage avec ascenseur en duplex inversé, d'une surface totale de 186m2 loi Carrez et 192m2 au sol.
Cet appartement vient d'être rénové avec des matériaux de qualité et se compose :
- au ler étage: grande entrée avec verrière, un double séjour, cuisine ouverte sur une salle à manger, suite parentale avec salle de bains et toilettes dressing, une seconde chambre avec salle de douche, toilettes séparés et une buanderie.
- au rez-de-chaussée : un second salon, une autre suite parentales avec salle d'eau et toilettes, une 4ème chambre (bureau ou chambre enfant).
Photos sur demande
Deux caves complètent ce bien.
Au pied du métro Liège

Publiée le 03/03/2025 - Réf. agence : 85619454 - Réf Superimmo : ANLXXS7HZ
Vous rencontrez un problème sur le site ?
Merci de nous signaler le problème
Caractérisques
Loyer : 7 900 € CC Prix en baisseCharges : 400 € / mois
186 m² - 7 pièces - 4 chambresAnnée de rénovation : 2024
1er étage Cuisine de 10 m²
Séjour de 30 m²
Bilan énergétique

Consommation d'énergie (DPE)

Logement très performant
A
B
C
D
E
F
G
287 kWh/m²/an
Logement extrêmement consommateur d’énergie

Diagnostics réalisés le 31/01/2025.

Intéressez par ce type de bien ?
Pour recevoir par email les annonces similaires
CRÉER UNE ALERTE
Localisation
DEMANDER L’ADRESSE
Cette annonce vous est proposée par :
06 20 53 24 21 Appelez de la part de Superimmo.com


DossierFacile est le dossier de location numérique de l'Etat. Entièrement gratuit, conforme et sécurisé, il protège les locataires et rassure les propriétaires.

Vos informations sont transmises directement à l'agence afin qu'elle traite votre demande. Voir notre charte des données personnelles.

Autres recherches

tous les appartements en duplex à Paris 8ème - tous les appartements meublées à Paris 8ème