06 60 09 74 77 Appelez de la part de Superimmo.com

Vos informations sont transmises directement à l'agent afin qu’il traite votre demande.

Contacter par email
Description

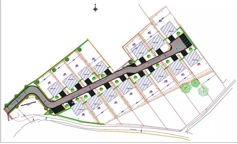
Lotissement de 15 terrains viabilisés situés sur les hauteurs de Maule avec une jolie vue et emplacement très calme. Terrains piscinables à construire d'une superficie de 507 à 1088 m² Lotissement à l'américain. Libre choix constructeur en R+combles + 30cm. Prix de vente de 193 000 € honoraires d'agence inclus. Plans sur simple demande par mail ou à l'agence. Cette annonce et son prix concerne le lot N°02 d'une superficie de 507M2. Emprise au sol de 20%. Lots encore disponibles : 2 (507M2), 4 (573M2), 9 (1 088M2), 11 (1 011M2) et 15 (868 M2) dans une fourchette de prix de 193 000 € HAi à 223 000 € HAI.
Les informations sur les risques auxquels ce bien est exposé sont disponibles sur le site Georisque : georisques. gouv. fr
Olivier Bloud - EI - est Agent Commercial mandataire en immobilier, immatriculé au Registre Spécial des Agents Commerciaux du Tribunal de Commerce de Nanterre sous le n°832886055.
Siège social du mandant : effiCity, 48 avenue de Villiers - 75017 PARIS - Société par Actions Simplifiée, société au capital de 132 373,05 euros, immatriculée au RCS Paris 497 617 746 et titulaire de la Carte professionnelle CPI 7501 2015 000 002 025 - CCI Paris IDF - Caisse de Garantie : GALIAN Assurances 89 rue de la Boétie 75008 Paris

Publiée le 21/10/2025 - Réf. agence : 196483 - Réf Superimmo : ANVXZPQRL
Vous rencontrez un problème sur le site ?
Merci de nous signaler le problème
Caractérisques
Prix de vente : 193 000 €Prix au m² : 381 € / m²

Honoraires à la charge du vendeur. Barème d’honoraires : voir le barème

507 m²Copropriété de 15 lots
Intéressez par ce type de bien ?
Pour recevoir par email les annonces similaires
CRÉER UNE ALERTE
Localisation
DEMANDER L’ADRESSE
Cette annonce vous est proposée par :
16 avis clients
06 60 09 74 77 Appelez de la part de Superimmo.com

Vos informations sont transmises directement à l'agent afin qu’il traite votre demande.