01 84 80 63 76 Appelez de la part de Superimmo.com

Vos informations sont transmises directement à l'agence afin qu'elle traite votre demande. Voir notre charte des données personnelles.

Contacter par email
Description

Une opportunité exceptionnelle vous attend à La Celle-Saint-Cloud. Dans une commune recherchée de l'Ouest parisien où les terrains à bâtir sont devenus rares, cette parcelle de 606 m² offre la possibilité unique de réaliser une maison contemporaine familiale dans un cadre résidentiel verdoyant et paisible.
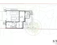
Le permis de construire a déjà été accordé et purgé. Il autorise l'édification d'une maison individuelle moderne de type R+1 avec sous-sol total, développant environ 250 à 270 m² habitables. Le projet prévoit un vaste séjour traversant ouvert sur le jardin, plusieurs chambres dont une suite parentale confortable, ainsi qu'un sous-sol complet pouvant accueillir un garage, un bureau, une salle de jeux ou de grands espaces de rangement.
Le toit-terrasse végétalisé, prévu dans le permis, apporte une touche architecturale contemporaine et s'intègre parfaitement à l'environnement.
Pour garantir la qualité et la sécurité du projet, toutes les études techniques ont été réalisées en amont. Les diagnostics géotechniques et études de sol confirment la faisabilité de la construction et définissent des préconisations précises pour les fondations et le drainage.
La Celle-Saint-Cloud est une ville réputée pour son équilibre entre dynamisme et qualité de vie. Ses nombreux espaces verts, ses établissements scolaires reconnus, ses commerces de proximité et sa bonne desserte en transports en font une adresse de choix dans les Yvelines. Proche de Versailles, de Rueil-Malmaison et de Bougival, elle offre un cadre résidentiel préservé tout en restant parfaitement connectée à Paris et aux grands axes.
Ce terrain se distingue par plusieurs points essentiels. Sa superficie de 606 m² permet une implantation confortable. Le permis de construire est validé et purgé, ce qui représente un gain de temps et une sécurité juridique appréciable. Le projet déjà pensé permet de bâtir une maison contemporaine généreuse et familiale d'environ 270 m² habitables.
Honoraires inclus de 2.96% TTC à la charge de l'acquéreur. Prix hors honoraires 675 000 €. Les informations sur les risques auxquels ce bien est exposé sont disponibles sur le site Géorisques : georisques.gouv.fr.

Publiée le 28/09/2025 - Réf. agence : SOUS LES PINS-UZAN - Réf Superimmo : ANVXZJWQY
Vous rencontrez un problème sur le site ?
Merci de nous signaler le problème
Caractérisques
Prix de vente : 695 000 €Prix au m² : 1 382 € / m²

Honoraires à la charge de l'acquéreur : 2,96% TTC - 20 000 € TTC inclus dans le prix de vente.

503 m²Terrain constructible
Vue dégagée
Intéressez par ce type de bien ?
Pour recevoir par email les annonces similaires
CRÉER UNE ALERTE
Localisation
DEMANDER L’ADRESSE
Cette annonce vous est proposée par :
01 84 80 63 76 Appelez de la part de Superimmo.com

Vos informations sont transmises directement à l'agence afin qu'elle traite votre demande. Voir notre charte des données personnelles.