06 70 48 61 27 Appelez de la part de Superimmo.com

Vos informations sont transmises directement à l'agent afin qu’il traite votre demande.

Contacter par email
Description

Rare à la vente – Opportunité exceptionnelle sur la commune prisée de Cavalière !
Nous vous proposons un magnifique terrain de 1 300 m², idéalement situé dans un environnement résidentiel calme et verdoyant, à moins d'un kilomètre des plages et du centre de Cavalière. Vue mer face à Port Cros et l'île du Levant.
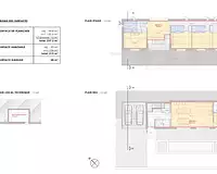
Ce terrain bénéficie d'un permis de construire accordé et purgé de tout recours pour la réalisation d'une villa contemporaine de 219 m² habitables sur deux niveaux, à laquelle s'ajoute un garage de 28 m².
Les volumes projetés offrent de belles possibilités d'aménagement, avec une architecture élégante et des espaces de vie lumineux, ouverts sur l'extérieur. Le terrain permet également de profiter d'une belle exposition et d'une vue mer.
Caractéristiques principales :
• Superficie du terrain : 1 300 m²
• Permis de construire accordé et purgé
• Surface habitable prévue : 219 m² (R+1)
• Garage de 28 m²
• Viabilisation à proximité immédiate
• Environnement résidentiel de qualité, proche commodités
Ce bien constitue une opportunité rare dans un cadre recherché de la Côte d'Azur. Les honoraires sont à la charge du vendeur.
Les informations sur les risques auxquels ce bien est exposé sont disponibles sur le site Géorisques : www. georisques. gouv. fr.
Réseau Immobilier CAPIFRANCE - Votre agent commercial (RSAC N°807 725 981 - Greffe de TOULON) Véronique REY THOUVARD Entrepreneur Individuel 06 70 48 61 27 - Réf.906985

Publiée le 25/05/2025 - maj le 19/09/2025 - Réf. agence : 340935946880 - Réf Superimmo : ANVXYN0CB
Vous rencontrez un problème sur le site ?
Merci de nous signaler le problème
Caractérisques
Prix de vente : 950 000 €Prix au m² : 731 € / m²

Honoraires à la charge du vendeur. Barème d’honoraires : voir le barème

Disponible immédiatement1 300 m²
Intéressez par ce type de bien ?
Pour recevoir par email les annonces similaires
CRÉER UNE ALERTE
Localisation
DEMANDER L’ADRESSE
Cette annonce vous est proposée par :
85 avis clients
06 70 48 61 27 Appelez de la part de Superimmo.com

Vos informations sont transmises directement à l'agent afin qu’il traite votre demande.