06 68 81 95 60 Appelez de la part de Superimmo.com

Vos informations sont transmises directement à l'agent afin qu’il traite votre demande.

Contacter par email
Description

Découvrez cette maison idéalement située à deux pas du centre-ville de Carvin, offrant de beaux volumes et un agencement fonctionnel.
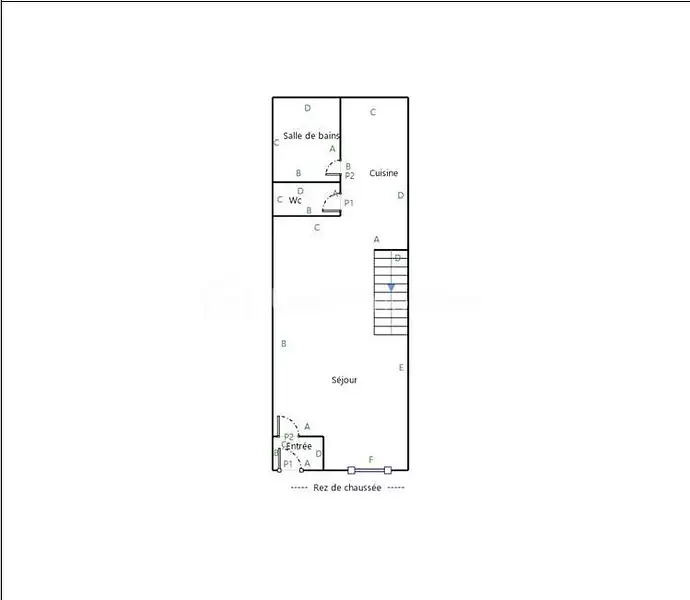
Au rez-de-chaussée, vous profitez d'un grand salon-séjour lumineux ouvert sur une cuisine pratique, ainsi qu'une salle de bain et des WC.
À l'étage, vous trouverez deux belles chambres offrant confort et tranquillité.
La maison est équipée de menuiseries PVC double vitrage, d'une chaudière à condensation récente, et bénéficie d'un tout-à-l'égout conforme.
Important : pas d'extérieur.
Idéale pour un premier achat ou un investissement locatif.
Cette annonce référence 313350 vous est présentée par votre agent commercial BSK Immobilier SEBASTIEN CARDON (EI) immatriculé au RSAC de ARRAS (62000) sous le numéro 91351178800014.
Prix du bien : 75 000,00 €
Les honoraires d'agence sont à la charge du vendeur.
A propos des performances énergétiques :
Date de réalisation du diagnostic énergétique : 16/07/2025
Score DPE : 268 kWhEP/m²/an
Score GES : 57 kgepCO2/m²/an
Montant estimé des dépenses annuelles d'énergie pour un usage standard : entre 1670.00 € et 2300.00 € par an. Prix moyens des énergies indexés sur l'année 2023 (abonnements compris).
Les informations sur les risques auxquels ce bien est exposé sont disponibles sur le site Géorisques : www.georisques.gouv.fr

Publiée le 02/12/2025 - Réf. agence : 313350 - Réf Superimmo : ANVX1001AK
Vous rencontrez un problème sur le site ?
Merci de nous signaler le problème
Caractérisques
Prix de vente : 75 000 €Prix au m² : 1 103 € / m²

Honoraires à la charge du vendeur. Barème d’honoraires : voir le barème

68 m² - 4 pièces - 2 chambres1 cave
Année de construction : 1948Chauffage individuel au gaz
1 salle de bain1 wc
Bilan énergétique Étiquette climat-énergie : E

Consommation d'énergie

Consommation
268 kWh/m².an
Logement très performantLogement extrêmement consommateur d'énergie

Émission de gaz à effet de serre

Peu d’émissions de CO2
A
B
C
D
E
F
G
57 kgeqCO2/m²/an
Émissions de CO2 très importante

Montant estimé des dépenses annuelles d’énergie pour un usage standard (année(s) de référence : 2023)
Minimum : 1 670 € / an
Maximum : 2 300 € / an

Diagnostics réalisés le 16/07/2025.

Intéressez par ce type de bien ?
Pour recevoir par email les annonces similaires
CRÉER UNE ALERTE
Localisation
DEMANDER L’ADRESSE
Cette annonce vous est proposée par :

Vos informations sont transmises directement à l'agent afin qu’il traite votre demande.

Autres recherches

toutes les maisons de 4 pièces à Carvin