06 44 01 10 11 Appelez de la part de Superimmo.com

Vos informations sont transmises directement à l'agent afin qu’il traite votre demande.

Contacter par email
Description

iad France - Audrey Lefebvre vous propose: Novelle construction au Pavillon Sainte Julie dans l'Aube (10) Achat sur plan, sublime maison de 200 m² sur un terrain de 829 m² avec piscine couverte et toit terrasse.
Bienvenue dans cette magnifique maison contemporaine située dans un quartier paisible à Pavillon Sainte Julie.
Composée d'un ensemble de 4 villas, la villa 3 sera construite avec des matériaux de qualité supérieure, cette propriété offre un confort absolu à ses occupants.
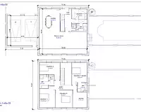
Dès l'entrée, vous serez séduit par un hall spacieux qui desservira une lumineuse pièce à vivre .
Le rez-de-chaussée se composera d'une chambre, d'une première salle d'eau, d'un WC indépendant, d'un espace cuisine et d'une vaste pièce à vivre donnant sur la piscine. Par un escalier en colimaçon, vous aurez accès au toit terrasse.
À l'étage, un palier desservira quatre chambres supplémentaires dont une chambre parentale avec sa propre salle d'eau avec un accès au toit terrasse. Une salle de bain avec baignoire et douche, un wc indépendant et un bureau avec accès au toit terrasse.
La terrasse offre un espace extérieur parfait pour se détendre en famille ou entre amis, et la piscine intérieure vous permettra de profiter des journées ensoleillées.
Le garage double vous offre un espace de stationnement sécurisé pour 2 véhicules.
Cette maison bénéficie d'une ventilation mécanique et d'une fosse septique, offrant un environnement sain et écologique.
Le Pavillon Sainte Julie se trouve à un emplacement stratégique :
A 18 kms de Troyes
A 110 kms de Reims
A 136 kms de Paris
Ne manquez pas l'opportunité d'acquérir cette propriété exceptionnelle alliant confort, design et tranquillité.

Publiée le 13/07/2025 - maj le 04/08/2025 - Réf. agence : 1809491 - Réf Superimmo : ANVXZ2AY3
Vous rencontrez un problème sur le site ?
Merci de nous signaler le problème
Caractérisques
Prix de vente : 383 000 €Prix au m² : 1 915 € / m²

Honoraires à la charge du vendeur. Barème d’honoraires : voir le barème

200 m² - 8 pièces - 5 chambres - ter. 829 m²Piscine
1 GarageTerrasse
Chauffage électrique (radiateurs)Séjour de 55 m²
Bilan énergétique
Non soumis au DPE
Intéressez par ce type de bien ?
Pour recevoir par email les annonces similaires
CRÉER UNE ALERTE
Localisation
DEMANDER L’ADRESSE
Cette annonce vous est proposée par :
06 44 01 10 11 Appelez de la part de Superimmo.com

Vos informations sont transmises directement à l'agent afin qu’il traite votre demande.