06 80 07 38 21 Appelez de la part de Superimmo.com

Vos informations sont transmises directement à l'agent afin qu’il traite votre demande.

Contacter par email
Description

iad France - Nathalie Segalen vous propose: EN EXCLUSIVITE - En plein cOEur de Pont-Croix, découvrez cette authentique maison de caractère bâtie en 1926, qui n’attend qu’un nouveau souffle pour révéler toute sa beauté. Édifiée en pierre de taille sur un terrain arboré de 1 784 m² avec arbres fruitiers, elle conjugue charme de l’ancien et beaux volumes.
Vous serez séduits par ses pièces lumineuses, ses parquets en bois, son escalier majestueux et sa cheminée qui apportent une âme unique à cette demeure. Elle offre aujourd’hui 3 chambres mais peut facilement en accueillir davantage, selon vos besoins.
Côté pratique, vous bénéficierez d’une cave de 68 m², de deux garages de 41 m² et 19 m², ainsi que d’un carport. La maison est équipée de fenêtres PVC (certaines oscillo-battantes) et d’une chaudière gaz à condensation installée en 2022, le tout raccordé au tout-à-l’égout.
Autre atout : son emplacement privilégié, en hypercentre de Pont-Croix, à deux pas des commerces et commodités, son agréable jardin aux différentes ambiances.
Anciennement aménagée en bureaux au rez-de-chaussée et en habitation à l’étage, cette demeure offre une formidable liberté d’aménagement. Elle ne demande qu’à retrouver une nouvelle jeunesse pour devenir une maison familiale chaleureuse, pleine de vie et de caractère.
Une opportunité rare pour les amoureux de l’authenticité et de l’espace !
Honoraires d'agence à la charge de l'acquéreur. Prix honoraires inclus : 215000 euros. Prix hors honoraires : 205000 euros. Honoraires TTC à la charge de l'acquéreur (4,88% du prix du bien hors honoraires) : 10000 euros.
Information d'affichage énergétique sur ce bien : classe ENERGIE D indice 217 et classe CLIMAT D indice 41. Les informations sur les risques auxquels ce bien est exposé, y compris l'obligation légale de débroussaillement, sont disponibles sur le site Géorisques : http://www.georisques.gouv.fr.
La présente annonce immobilière a été rédigée sous la responsabilité éditoriale de Mme Nathalie Segalen mandataire indépendant en immobilier (sans détention de fonds), agent commercial de la SAS I@D France immatriculé au RSAC de QUIMPER sous le numéro 514 240 977, titulaire de la carte de démarchage immobilier pour le compte de la société I@D France SAS.

Publiée le 27/09/2025 - Réf. agence : 1853251 - Réf Superimmo : ANVXZJU2P
Vous rencontrez un problème sur le site ?
Merci de nous signaler le problème
Caractérisques
Prix de vente : 215 000 €Prix au m² : 1 243 € / m²

Honoraires à la charge du vendeur. Barème d’honoraires : voir le barème

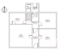
173 m² - 11 pièces - 4 chambres - ter. 1 784 m²1 Garage
Année de construction : 1926Chauffage au gaz (radiateurs)
Cheminée
Bilan énergétique Étiquette climat-énergie : D

Consommation d'énergie

Consommation
217 kWh/m².an
Logement très performantLogement extrêmement consommateur d'énergie

Émission de gaz à effet de serre

Peu d’émissions de CO2
A
B
C
D
E
F
G
41 kgeqCO2/m²/an
Émissions de CO2 très importante

Montant estimé des dépenses annuelles d’énergie pour un usage standard (année(s) de référence : 2023)
Minimum : 3 230 € / an
Maximum : 4 420 € / an

Diagnostics réalisés le 25/09/2025.

Intéressez par ce type de bien ?
Pour recevoir par email les annonces similaires
CRÉER UNE ALERTE
Localisation
DEMANDER L’ADRESSE
Cette annonce vous est proposée par :
157 avis clients
06 80 07 38 21 Appelez de la part de Superimmo.com

Vos informations sont transmises directement à l'agent afin qu’il traite votre demande.