06 80 84 56 61 Appelez de la part de Superimmo.com

Vos informations sont transmises directement à l'agence afin qu'elle traite votre demande. Voir notre charte des données personnelles.

Contacter par email
Description

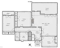
VILLA VUE MER A RENOVER
Villa à rénover dans quartier recherché proche du village et des plages.
Implantée sur un beau terrain agrémenté d’espèces variées, le jardin est l’espace piscine sont un havre de paix sans vis-à-vis.
Cette villa offre un beau potentiel. Repartie sur deux niveaux elle est totalement modulable pour répondre à votre style de vie.
Conformément à l'article L.561-5 et suivants du Code Monétaire et Financier, il vous sera demandé de nous présenter une pièce d'identité avant chaque visite.
Les informations sur les risques auxquels ce bien est exposé sont disponibles sur le site Géorisques: www.georisques.gouv.fr

Publiée le 06/12/2025 - Réf. agence : 86231141 - Réf Superimmo : ANVX1011XS
Vous rencontrez un problème sur le site ?
Merci de nous signaler le problème
Caractérisques
Prix de vente : 950 000 €Prix au m² : 5 938 € / m²

Honoraires à la charge du vendeur. Barème d’honoraires : voir le barème

160 m² - ter. 1 220 m²Orientation : Sud
Vue dégagée, sur merAssainissement : fosse septique
Cheminée
Bilan énergétique Étiquette climat-énergie : E

Consommation d'énergie

Consommation
312 kWh/m².an
Logement très performantLogement extrêmement consommateur d'énergie

Émission de gaz à effet de serre

Peu d’émissions de CO2
A
B
C
D
E
F
G
10 kgeqCO2/m²/an
Émissions de CO2 très importante

Montant estimé des dépenses annuelles d’énergie pour un usage standard (année(s) de référence : 2021)
Minimum : 3 760 € / an
Maximum : 5 090 € / an

Diagnostics réalisés le 05/02/2025.

Intéressez par ce type de bien ?
Pour recevoir par email les annonces similaires
CRÉER UNE ALERTE
Localisation
DEMANDER L’ADRESSE
Cette annonce vous est proposée par :
06 80 84 56 61 Appelez de la part de Superimmo.com

Vos informations sont transmises directement à l'agence afin qu'elle traite votre demande. Voir notre charte des données personnelles.

Autres recherches

toutes les maisons à rénover dans le Var