06 24 17 46 57 Appelez de la part de Superimmo.com

Vos informations sont transmises directement à l'agent afin qu’il traite votre demande.

Contacter par email
Description

Christophe Michaudelle – EXLUSIVITE - CAPIFRANCE vous propose proche de Meaux, à Nanteuil lès Meaux :
Secteur AU CALME, maison indépendante bien entretenue - 7 pièces - 148 m² - 5 chambres (6è possible) - 1 grand bureau - 2 salles d'eau - 2 WC - grand jardin – terrasse - balcon - stationnements - un sous sol total de 99 m² (garage, atelier, buanderie, cave, rangements) - 850 m² de terrain environ (clos, plat et arboré) - abri
Je vous propose dans un secteur au calme cette charmante maison familiale, bien entretenue, très lumineuse et bien exposée. Traversante est ouest. Fonctionnelle avec ses nombreux rangements, ses stationnements, son grand sous sol total. Un très bel espace extérieur avec vue dégagée.
un VRAI COUP DE COEUR
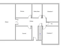
Elle se compose :
Au RDC surélevé :
Une entrée – une cuisine aménagée - un séjour avec sa cheminée (ouvert sur le balcon et la terrasse et jardin) – 2 chambres – un grand bureau (ou une 6è chambre possible avec accès terrasse et jardin) - 1 salle d'eau, WC
Au 1er étage :
3 autres grandes chambres (dont une avec 2 espaces greniers pouvant être optimisés), une salle d'eau avec WC, un espace grenier
Extérieur :
Un jardin clos, plat et arboré (850 m² environ)
Terrasse et balcon
Stationnement
Un abri
Informations complémentaires :
Maison de 1974
Au calme
Porte de garage (électrique) et portail en aluminium
Clôture en aluminium
Cheminée
Fenêtres aluminium et bois
Chaudière fioul
Ballon d'eau chaude
Vous êtes intéressés, vous avez besoin d'informations complémentaires ?
Contactez moi au 06 24 17 46 57, je serai ravi de vous faire découvrir cette belle maison.
Autres informations :
Accès commodités (transports, écoles, gare ligne P, axes routiers, commerces, espaces naturels, ...)
A 20 min en transport de la gare de Meaux 5 kms (Accès Paris Gare de l'est en 25 min)
Gare TGV et RER A à 15 kms
A 17 kms du Val d'Europe
A 31 kms de l'Aéroport de Roissy Charles de Gaulle
Les honoraires sont à la charge du vendeur.
Les informations sur les risques auxquels ce bien est exposé sont disponibles sur le site Géorisques : www. georisques. gouv. fr.
Réseau Immobilier CAPIFRANCE - Votre agent commercial (RSAC N°807 514 039 - Greffe de MEAUX) Christophe MICHAUDELLE Entrepreneur Individuel à Responsabilité Limitée 06 24 17 46 57 - Réf.931411

Publiée le 20/11/2025 - Réf. agence : 340938992673 - Réf Superimmo : ANVXZWZK7
Vous rencontrez un problème sur le site ?
Merci de nous signaler le problème
Caractérisques
Prix de vente : 369 500 €Prix au m² : 2 497 € / m²

Honoraires à la charge du vendeur. Barème d’honoraires : voir le barème

Disponible immédiatement148 m² - 7 pièces - 5 chambres - ter. 850 m²
Orientation : Est / Ouest - TraversantVue dégagée, sur jardin
Parking extérieurBalcon
TerrasseAnnée de construction : 1974
Chauffage au bois (cheminée)Espace vert - Jardin privatif
Cheminée
Bilan énergétique Étiquette climat-énergie : E

Consommation d'énergie

Consommation
258 kWh/m².an
Logement très performantLogement extrêmement consommateur d'énergie

Émission de gaz à effet de serre

Peu d’émissions de CO2
A
B
C
D
E
F
G
68 kgeqCO2/m²/an
Émissions de CO2 très importante

Montant estimé des dépenses annuelles d’énergie pour un usage standard (année(s) de référence : 2021)
Minimum : 4 520 € / an
Maximum : 6 150 € / an

Diagnostics réalisés le 07/11/2024.

Intéressez par ce type de bien ?
Pour recevoir par email les annonces similaires
CRÉER UNE ALERTE
Localisation
DEMANDER L’ADRESSE
Cette annonce vous est proposée par :
26 avis clients
06 24 17 46 57 Appelez de la part de Superimmo.com

Vos informations sont transmises directement à l'agent afin qu’il traite votre demande.