06 72 83 61 37 Appelez de la part de Superimmo.com

Vos informations sont transmises directement à l'agent afin qu’il traite votre demande.

Contacter par email
Description

MAISON A TERMINER
MAISON A FINIR DE RENOVER
Opportunité exceptionnelle pour les amateurs de rénovation !
Ce bâtiment, offrant un grand potentiel, attend d’être terminé selon vos envies.
Les travaux déjà réalisés :
• Charpente et couverture
• Fenêtres
Etc ...
... plus d'infos sur demande par téléphone
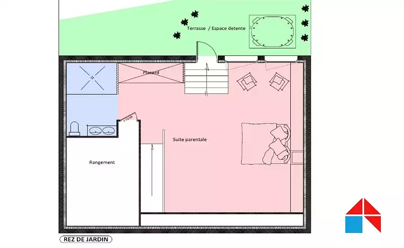
À l’intérieur, Imaginez :
Votre espace de vie au rez-de-chaussée.
À l’étage, deux belles chambres, une salle de bain et un dressing sur mesure. (déja réalisé en partie)
La pièce maîtresse ?
Une somptueuse suite parentale avec accès direct au terrain et un espace spa privé, offrant une vue imprenable sur la campagne environnante.
Les photos proposées sont des projections 3D non contractuelles pour vous aider à visualiser le potentiel incroyable de ce projet.
Prix de vente : 60 000 €, honoraires inclus.
Pour plus d'informations, contactez moi. Grâce à son expertise en architecture, il saura vous accompagner et vous conseiller dans ce projet unique.
Ne manquez pas cette chance de créer la maison de vos rêves !

Publiée le 22/04/2025 - maj le 14/11/2025 - Réf. agence : 85251939 - Réf Superimmo : ANVXYD2JL
Vous rencontrez un problème sur le site ?
Merci de nous signaler le problème
Caractérisques
Prix de vente : 60 000 €Prix au m² : 414 € / m²

Honoraires à la charge du vendeur. Barème d’honoraires : voir le barème

145 m² - 5 pièces - 3 chambres - ter. 160 m²Vue dégagée, sur campagne
Cuisine de 10 m²
Intéressez par ce type de bien ?
Pour recevoir par email les annonces similaires
CRÉER UNE ALERTE
Localisation
DEMANDER L’ADRESSE
Cette annonce vous est proposée par :

Vos informations sont transmises directement à l'agent afin qu’il traite votre demande.

Autres recherches

toutes les maisons de 5 pièces dans les Vosges