06 11 86 34 68 Appelez de la part de Superimmo.com

Vos informations sont transmises directement à l'agent afin qu’il traite votre demande.

Contacter par email
Description

Découvrez cette ravissante maison de village située dans la pittoresque commune de Villevieille. Avec une surface habitable d'environ 140m² et une parcelle de 270m², cette demeure élevée d'un étage offre un cadre de vie exceptionnel.
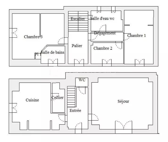
À l'étage, vous trouverez trois chambres, dont une grande suite parentale dotée d'une salle de bain ouverte. Une spacieuse salle d'eau avec une douche italienne complète cet étage.
Au rez-de-chaussée, un superbe hall en travertin vous accueille et vous mène d'un côté à un très grand salon voûté en ogive, et de l'autre, à une cuisine équipée d'une cheminée d'époque datant de 1790 et d'un garde-manger, un wc complète cet étage.
Le jardin agréable avec une petite véranda à rénover offre un espace de détente idéal. Il est également possible d'aménager un abri voiture sur un côté de la propriété.
La maison est idéalement située à seulement 12 minutes à pied du centre de Sommières et à 30 minutes en voiture de Nîmes, Montpellier, les Cévennes et les plages. Nichée dans un cadre paisible, elle est éloignée des grands axes routiers, vous garantissant ainsi tranquillité et sérénité pour vous et votre famille.
Taxe foncière : environ 1 000 € par an.
Ne manquez pas cette opportunité unique de vous installer dans une maison de caractère offrant un cadre de vie exceptionnel.
Contactez nous dès aujourd'hui pour organiser une visite et découvrir tout le charme de cette propriété remarquable.
Cette annonce référence 274539 vous est présentée par votre agent commercial BSK Immobilier FILIPE FERREIRA (EI) immatriculé au RSAC de MONTPELLIER (34000) sous le numéro 88750771300014.
Prix du bien : 305 000,00 €
Les honoraires d'agence sont à la charge du vendeur.
A propos des performances énergétiques :
Date de réalisation du diagnostic énergétique : 08/10/2023
Score DPE : 290 kWhEP/m²/an
Score GES : 9 kgepCO2/m²/an
Montant estimé des dépenses annuelles d'énergie pour un usage standard : entre 2420.00 € et 3310.00 € par an. Prix moyens des énergies indexés sur l'année 2021 (abonnements compris).
Les informations sur les risques auxquels ce bien est exposé sont disponibles sur le site Géorisques : www.georisques.gouv.fr

Publiée le 05/05/2025 - maj le 27/11/2025 - Réf. agence : 274539 - Réf Superimmo : ANVXYGGIU
Vous rencontrez un problème sur le site ?
Merci de nous signaler le problème
Caractérisques
Prix de vente : 305 000 € Prix en baissePrix au m² : 2 179 € / m²

Honoraires à la charge du vendeur. Barème d’honoraires : voir le barème

140 m² - 5 pièces - 3 chambres - ter. 279 m²Orientation : Est, Ouest, Sud, Sud-Ouest
Année de construction : 1800Chauffage individuel électrique
1 salle d'eau - 1 salle de bain2 wc
Cheminée
Bilan énergétique Étiquette climat-énergie : E

Consommation d'énergie

Consommation
290 kWh/m².an
Logement très performantLogement extrêmement consommateur d'énergie

Émission de gaz à effet de serre

Peu d’émissions de CO2
A
B
C
D
E
F
G
9 kgeqCO2/m²/an
Émissions de CO2 très importante

Montant estimé des dépenses annuelles d’énergie pour un usage standard (année(s) de référence : 2021)
Minimum : 2 420 € / an
Maximum : 3 310 € / an

Diagnostics réalisés le 08/10/2023.

Intéressez par ce type de bien ?
Pour recevoir par email les annonces similaires
CRÉER UNE ALERTE
Historique des prix
2 septembre 2025

Baisse de 7,6%

305 000 €
5 mai 2025
330 000 €
Localisation
DEMANDER L’ADRESSE
Cette annonce vous est proposée par :

Vos informations sont transmises directement à l'agent afin qu’il traite votre demande.

Autres recherches

toutes les maisons à rénover dans le Gard - toutes les maisons de 5 pièces à Villevieille