07 77 69 43 71 Appelez de la part de Superimmo.com

Vos informations sont transmises directement à l'agence afin qu'elle traite votre demande. Voir notre charte des données personnelles.

Contacter par email
Description

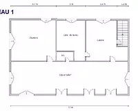
À 10 minutes d'Orthez, avec tous commerces, écoles, gare TGV et autoroute Bayonne-Toulouse, découvrez cette maison néobéarnaise de 1985 sur 2 niveaux et située dans un environnement calme et sans vis-à-vis. Elle comprend d'une part un grand espace de vie sur balcon, une chambre, une cuisine, une salle de bains carrelée avec douche, baignoire d'angle, deux vasques, ainsi qu’un WC séparé. A l'étage inférieur, 4 chambres à rafraîchir et organiser selon vos envies . Elle bénéficie du confort d'un conduit de cheminée, du double vitrage et d'une climatisation réversible installée récemment avec un DPE en cours de mise à jour, ainsi que d'un assainissement individuel, et d'un puits. Cette propriété sans amiante ni termites inclut également un garage de 39 m². Possibilité d'acquérir un terrain attenant de 2230 m². Votre conseillère, Flora Leroy, se tient à votre disposition pour discuter avec vous de cette opportunité et de vos projets.
« Les informations sur les risques auxquels ce bien est exposé sont disponibles sur le site Géorisques : www.georisques.gouv.fr »
FLEUVES IMMOBILIER
07 77 69 43 71
Votre agence immobilière
RCS 909 508 749
Titulaire de la Carte professionnelle CPI 7801 2022 000 000 038 délivrée par CCI de PARIS IDF
Ville du greffe : Versailles
Plus d'informations sur notre site fleuves-immobilier com - Référence: 7501818636
Honoraires charge vendeur.

Publiée le 01/07/2025 - maj le 09/12/2025 - Réf. agence : 7501818636 - Réf Superimmo : ANVXYXTRA
Vous rencontrez un problème sur le site ?
Merci de nous signaler le problème
Caractérisques
Prix de vente : 179 000 €Prix au m² : 1 557 € / m²

Honoraires à la charge du vendeur. Barème d’honoraires : voir le barème

115 m² - 6 pièces - 5 chambres - ter. 2 300 m²1 garage - 4 parkings
1 balconAnnée de construction : 1985
Cuisine séparée, équipéeSéjour de 41 m²
1 salle de bain1 wc
Bilan énergétique
Non soumis au DPE

Diagnostics réalisés le 28/04/2023.

Intéressez par ce type de bien ?
Pour recevoir par email les annonces similaires
CRÉER UNE ALERTE
Localisation
DEMANDER L’ADRESSE
Cette annonce vous est proposée par :
07 77 69 43 71 Appelez de la part de Superimmo.com

Vos informations sont transmises directement à l'agence afin qu'elle traite votre demande. Voir notre charte des données personnelles.