06 52 52 89 80 Appelez de la part de Superimmo.com

Vos informations sont transmises directement à l'agent afin qu’il traite votre demande.

Contacter par email
Description

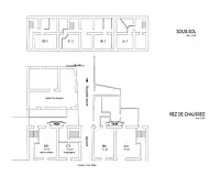
iad France - Morgan Gomez vous propose: Immeuble de rapport libre de toute occupation (hors salon de coiffure). Situé secteur Léon Blum, proche commerces et services, il développe 771 m² sur 4 niveaux, composés de 12 appartements (T2/T3 de 25 à 54 m²), 4 locaux commerciaux (30 à 135 m²) et 10 places de stationnement sécurisées. Trois entrées indépendantes desservent les logements, dont la plupart ont été rénovés en 2003. La toiture en bac acier date de 2018 et la façade arrière a été isolée en 2012. Chauffage électrique. Des travaux complémentaires sont à prévoir, mais le bien offre un potentiel de valorisation rare sur Clermont-Ferrand, idéal investisseur.
Honoraires d'agence à la charge du vendeur.
Information d'affichage énergétique sur ce bien : classe ENERGIE E indice 298 et classe CLIMAT B indice 8. Les informations sur les risques auxquels ce bien est exposé, y compris l'obligation légale de débroussaillement, sont disponibles sur le site Géorisques : http://www.georisques.gouv.fr.
La présente annonce immobilière a été rédigée sous la responsabilité éditoriale de M Morgan Gomez mandataire indépendant en immobilier (sans détention de fonds), agent commercial de la SAS I@D France immatriculé au RSAC de CLERMONT-FERRAND sous le numéro 848224291, titulaire de la carte de démarchage immobilier pour le compte de la société I@D France SAS.

Publiée le 09/10/2025 - maj le 31/10/2025 - Réf. agence : 1860500 - Réf Superimmo : ANVXZMWN2
Vous rencontrez un problème sur le site ?
Merci de nous signaler le problème
Caractérisques
Prix de vente : 1 395 000 €Prix au m² : 1 809 € / m²

Honoraires à la charge du vendeur. Barème d’honoraires : voir le barème

771 m²1 Parking
CaveChauffage individuel électrique
Alarme - Digicode - Interphone
Bilan énergétique Étiquette climat-énergie : E

Consommation d'énergie

Consommation
298 kWh/m².an
Logement très performantLogement extrêmement consommateur d'énergie

Émission de gaz à effet de serre

Peu d’émissions de CO2
A
B
C
D
E
F
G
8 kgeqCO2/m²/an
Émissions de CO2 très importante

Montant estimé des dépenses annuelles d’énergie pour un usage standard (année(s) de référence : 2021)
Minimum : 970 € / an
Maximum : 1 360 € / an

Diagnostics réalisés le 30/10/2023.

Intéressez par ce type de bien ?
Pour recevoir par email les annonces similaires
CRÉER UNE ALERTE
Localisation
DEMANDER L’ADRESSE
Cette annonce vous est proposée par :
06 52 52 89 80 Appelez de la part de Superimmo.com

Vos informations sont transmises directement à l'agent afin qu’il traite votre demande.