06 60 40 30 50 Appelez de la part de Superimmo.com

Vos informations sont transmises directement à l'agence afin qu'elle traite votre demande. Voir notre charte des données personnelles.

Contacter par email
Description

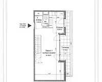
IMMOSQUARE Grenoble vous propose à la vente sur GRENOBLE Vigny Musset, 27 allée des 2 Mondes, un très agréable F4 en Duplex de 78,50 m² + Terrasse de 9,16 m². Cave et garage inclus. Il est situé dans une résidence de 2007, au 5/5 avec ascenseur. Il se compose d'une petite entrée avec placard, d'une belle pièce principale de 33,90 m² avec cuisine, d'un wc. A l'étage, on trouve 3 chambres avec placards, salle de bains et wc. Tb vue Belledonne. Parc intérieur. Toutes commodités. classe énergie C 2592 € charges/an 25 lots 006.60.40.30.50
Honoraires à la charge du vendeur. Dans une copropriété de 25 lots. Aucune procédure n'est en cours. Classe énergie C, Classe climat A Montant estimé des dépenses annuelles d'énergie pour un usage standard : entre 770.00 € et 1090.00 € sur les années 2021, 2022 et 2023 (abonnements compris). Les informations sur les risques auxquels ce bien est exposé sont disponibles sur le site Géorisques : georisques.gouv.fr.

Publiée le 22/10/2025 - maj le 04/11/2025 - Réf. agence : 3746-IMMOSQUARE38 - Réf Superimmo : ANVXZQ1BN
Vous rencontrez un problème sur le site ?
Merci de nous signaler le problème
Caractérisques
Prix de vente : 155 000 €Prix au m² : 1 975 € / m²
Charges prévisionnelles : 2 592 € / an

Honoraires à la charge du vendeur.

78,5 m² - 4 pièces - 3 chambresDernier étage (5ème) avec ascenseur
Orientation : EstVue dégagée
1 Garage1 terrasse
Année de construction : 2007Chauffage collectif
Séjour de 27 m²1 salle de bain
Wc séparé - 2 wcCopropriété de 25 lots
Bilan énergétique Étiquette climat-énergie : C

Consommation d'énergie

Consommation
121 kWh/m².an
Logement très performantLogement extrêmement consommateur d'énergie

Émission de gaz à effet de serre

Peu d’émissions de CO2
A
B
C
D
E
F
G
4 kgeqCO2/m²/an
Émissions de CO2 très importante

Montant estimé des dépenses annuelles d’énergie pour un usage standard (année(s) de référence : 2021)
Minimum : 770 € / an
Maximum : 1 090 € / an

Diagnostics réalisés le 10/01/2025.

Intéressez par ce type de bien ?
Pour recevoir par email les annonces similaires
CRÉER UNE ALERTE
Localisation
DEMANDER L’ADRESSE
Cette annonce vous est proposée par :
243 avis clients
06 60 40 30 50 Appelez de la part de Superimmo.com

Vos informations sont transmises directement à l'agence afin qu'elle traite votre demande. Voir notre charte des données personnelles.

Autres recherches

tous les appartements en duplex à Grenoble - tous les appartements de 4 pièces à Grenoble