06 22 28 88 42 Appelez de la part de Superimmo.com

Vos informations sont transmises directement à l'agent afin qu’il traite votre demande.

Contacter par email
Description

iad France - Fatiha El Idrissi vous propose: CRÉTEIL - SECTEUR PREFECTURE,
___ Rue René Arcos, Rue Claude Perrault, ...
___ Métro CRÉTEIL-PRÉFECTURE et le centre commercial CRÉTEIL-SOLEIL à moins de 600m (8min à pied),
___ Ecoles maternelle/Primaire/collège/lycée à moins de 5min à pied,
___ Travaux de rafraichissement à prévoir,
___ Stationnement libre dans la résidence,
___ Taxe foncière 1550,
___ Conseillère disponible 7/7.
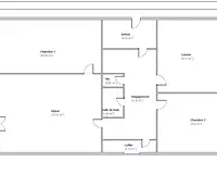
Appartement de type F4 traversant au 3eme étage SANS ascenseur situé dans une résidence privée et sécurisée, il se compose d'une entrée avec placard/penderie, un séjour donnant sur balcon exposé SUD, un dégagement, une cuisine avec balcon et cellier, 3 chambres, un dressing, une salle de bains et des WC séparés. Il dispose également de nombreux rangements et d'une grande cave au sous-sol.
La presente annonce immobiliere vise 2 lots situés dans une copropriété de 40 lots au total et ne faisant l'objet d'aucune procédure en cours citée à l'article L. 721-1 du code de la construction et de l'habitation. Montant moyen mensuel de charges déclaré par le vendeur : 243.33€ par mois (soit 2920 € annuel). Honoraires d'agence à la charge du vendeur.
Information d'affichage énergétique sur ce bien : classe ENERGIE E indice 261 et classe CLIMAT C indice 25. Les informations sur les risques auxquels ce bien est exposé, y compris l'obligation légale de débroussaillement, sont disponibles sur le site Géorisques : http://www.georisques.gouv.fr.
La présente annonce immobilière a été rédigée sous la responsabilité éditoriale de Mme Fatiha El Idrissi mandataire indépendant en immobilier (sans détention de fonds), agent commercial de la SAS I@D France immatriculé au RSAC de CRETEIL sous le numéro 410 896 633, titulaire de la carte de démarchage immobilier pour le compte de la société I@D France SAS.

Publiée le 27/01/2025 - maj le 06/11/2025 - Réf. agence : 1682424 - Réf Superimmo : ANVXXQQG9
Vous rencontrez un problème sur le site ?
Merci de nous signaler le problème
Caractérisques
Prix de vente : 229 000 € Prix en baissePrix au m² : 3 053 € / m²
Charges prévisionnelles : 2 920 € / an

Honoraires à la charge du vendeur. Barème d’honoraires : voir le barème

75 m² - 4 pièces - 3 chambresÉtage 3/4
CaveAnnée de construction : 1965
Chauffage collectif au gazDigicode - Interphone
Copropriété de 40 lots
Bilan énergétique Étiquette climat-énergie : E

Consommation d'énergie

Consommation
261 kWh/m².an
Logement très performantLogement extrêmement consommateur d'énergie

Émission de gaz à effet de serre

Peu d’émissions de CO2
A
B
C
D
E
F
G
25 kgeqCO2/m²/an
Émissions de CO2 très importante

Montant estimé des dépenses annuelles d’énergie pour un usage standard (année(s) de référence : 2021)
Minimum : 1 360 € / an
Maximum : 1 890 € / an

Diagnostics réalisés le 25/09/2023.

Intéressez par ce type de bien ?
Pour recevoir par email les annonces similaires
CRÉER UNE ALERTE
Historique des prix
19 septembre 2025

Baisse de 0,4%

229 000 €
2 mars 2025

Baisse de 2,1%

230 000 €
27 janvier 2025
235 000 €
Localisation
DEMANDER L’ADRESSE
Cette annonce vous est proposée par :
2 avis clients
06 22 28 88 42 Appelez de la part de Superimmo.com

Vos informations sont transmises directement à l'agent afin qu’il traite votre demande.

Autres recherches

tous les appartements de 4 pièces à Créteil