06 23 64 99 28 Appelez de la part de Superimmo.com

Vos informations sont transmises directement à l'agent afin qu’il traite votre demande.

Contacter par email
Description

SOORTS-HOSSEGOR・APPARTEMENT T3 ・73 M² ・2 CHAMBRES ・JARDIN ・TERRASSE・1 PLACE PARKING EN SOUS-SOL ・ASCENSEUR
10 appartements sont à la vente dans le cadre de ce projet immobilier. T2, T3 et T4. De 45 à 90 m²
Miguel Treal, Efficity Immobilier, vous présente ce superbe appartement situé au cœur du bourg de Soorts. Offrant confort et modernité, il est idéal pour une résidence principale, secondaire ou un investissement locatif.
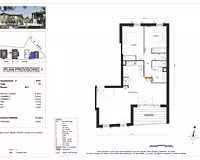
Description détaillée
• 1er étage
• Surface: 73,44 m²
• Séjour lumineux 41,5 m²
• Chambre 1 de 12,34 m²
• Chambre 2 de 10,03 m²
• Cuisine ouverte, aménagée et équipée
• Salle d'eau 4,91 m²
Extérieurs et commodités
• Terrasse de 8 m²
• Ascenseur, local vélos
• 1 Place de stationnement intérieur (sous-sol) compris dans le prix. Possibilité d'en acquérir en sus
Aspects techniques
• Chauffage programmable par climatisation réversible sur pompe à chaleur
• Eau chaude sanitaire par ballon thermodynamique pour un confort optimal
• Huisseries PVC, double vitrage, volets roulant électriques
• Parquet en chêne dans les chambres
• Alarme anti-intrusion, vidéophone et digicode à l'entrée de la résidence
• Certifié RE 2020
Environnement
• Espaces verts au sein de la résidence
• Proximité immédiate de: médecin, pharmacie, commerces, écoles
• À 5 minute de l'océan
• 25 min de Bayonne, Dax
Contactez-nous
• Pour plus d'informations, contactez Miguel Treal au 0623649928
Les informations sur les risques auxquels ce bien est exposé sont disponibles sur le site Georisque : georisques. gouv. fr
Miguel Treal - EI - est Agent Commercial mandataire en immobilier, immatriculé au Registre Spécial des Agents Commerciaux du Tribunal de Commerce de Dax sous le n°850011503.
Siège social du mandant : effiCity, 48 avenue de Villiers - 75017 PARIS - Société par Actions Simplifiée, société au capital de 132 373,05 euros, immatriculée au RCS Paris 497 617 746 et titulaire de la Carte professionnelle CPI 7501 2015 000 002 025 - CCI Paris IDF - Caisse de Garantie : GALIAN Assurances 89 rue de la Boétie 75008 Paris

Publiée le 02/03/2025 - maj le 06/05/2025 - Réf. agence : 17466910 - Réf Superimmo : ANVXXZQ9S
Vous rencontrez un problème sur le site ?
Merci de nous signaler le problème
Caractérisques
Prix de vente : 540 000 € Prix en baissePrix au m² : 7 397 € / m²

Honoraires à la charge du vendeur. Barème d’honoraires : voir le barème

73 m² - 3 pièces - 2 chambresDernier étage (1er) avec ascenseur
Orientation : SudGarage
BalconChauffage individuel électrique (clim. réversible)
Séjour de 41 m²1 salle d'eau
Bilan énergétique Étiquette climat-énergie : A

Consommation d'énergie

Consommation
25 kWh/m².an
Logement très performantLogement extrêmement consommateur d'énergie

Émission de gaz à effet de serre

Peu d’émissions de CO2
A
B
C
D
E
F
G
5 kgeqCO2/m²/an
Émissions de CO2 très importante

Montant estimé des dépenses annuelles d’énergie pour un usage standard (année(s) de référence : 2022)
Minimum : 750 € / an
Maximum : 950 € / an

Diagnostics réalisés le 26/01/2025.

Intéressez par ce type de bien ?
Pour recevoir par email les annonces similaires
CRÉER UNE ALERTE
Historique des prix
28 mars 2025

Baisse de 10,7%

540 000 €
2 mars 2025
605 000 €
Localisation
DEMANDER L’ADRESSE
Cette annonce vous est proposée par :
20 avis clients
06 23 64 99 28 Appelez de la part de Superimmo.com

Vos informations sont transmises directement à l'agent afin qu’il traite votre demande.

Autres recherches

tous les appartements de 3 pièces à Soorts-Hossegor