01 87 27 07 01 Appelez de la part de Superimmo.com

Vos informations sont transmises directement à l'agence afin qu'elle traite votre demande. Voir notre charte des données personnelles.

Contacter par email
Description

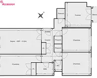
RÉFÉRENCE : 3250L-0070 Un T4 de 71 m² au 2ème étage à Villeneuve-la-Garenne (92), avec parking et cave. Le bien comprend une entrée, un grand séjour, une cuisine, 3 chambres, 1 salle de bains. Taxe foncière : 1 550 €. Montant des charges de copropriété : 3 110 €/an, soit environ 259 €/mois. Aucune procédure en cours dans la copropriété. Informations sur les risques disponibles sur www.georisques.gouv.fr. Modalités de visites et remise des offres d’achat : visites sur rendez-vous, dépôt des candidatures avec dossier complet auprès du commercialisateur. Offres prioritaires à déposer dans le mois suivant la dernière publicité légale, par mail, en main propre ou par tout autre moyen. Prix et conditions soumis à ressources selon l’article L443-11 et suivants du CCH. Logement commercialisé par QUADRAL : DEBORA GONCALVES

Publiée le 31/07/2025 - maj le 06/12/2025 - Réf. agence : 243_3250L-0070 - Réf Superimmo : ANVXZ7Y4I
Vous rencontrez un problème sur le site ?
Merci de nous signaler le problème
Caractérisques
Prix de vente : 189 442 €Prix au m² : 2 668 € / m²

Barème d’honoraires : voir le barème

Disponible immédiatement71 m² - 4 pièces - 3 chambres
2ème étage avec ascenseur1 Parking
Cave1 balcon
Chauffage individuel1 salle de bain
Bilan énergétique Étiquette climat-énergie : C

Consommation d'énergie

Consommation
151 kWh/m².an
Logement très performantLogement extrêmement consommateur d'énergie

Émission de gaz à effet de serre

Peu d’émissions de CO2
A
B
C
D
E
F
G
28 kgeqCO2/m²/an
Émissions de CO2 très importante

Montant estimé des dépenses annuelles d’énergie pour un usage standard
Minimum : 840 € / an
Maximum : 1 180 € / an
Intéressez par ce type de bien ?
Pour recevoir par email les annonces similaires
CRÉER UNE ALERTE
Localisation
DEMANDER L’ADRESSE
Cette annonce vous est proposée par :
01 87 27 07 01 Appelez de la part de Superimmo.com

Vos informations sont transmises directement à l'agence afin qu'elle traite votre demande. Voir notre charte des données personnelles.

Autres recherches

tous les appartements de 4 pièces à Villeneuve-la-Garenne