01 53 21 02 05 Appelez de la part de Superimmo.com

Vos informations sont transmises directement à l'agence afin qu'elle traite votre demande. Voir notre charte des données personnelles.

Contacter par email
Description

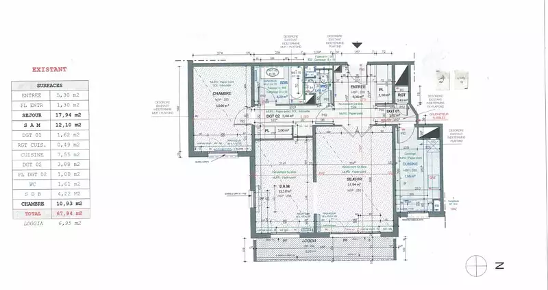
3 Pièces sans vis à vis à rénover
Jourdain, Place des Fetes, Buttes Chaumont : au 8eme étage avec ascenseur, exposé plein est, un appartement de 3 pièces avec balcon, 68m², à rénover entièrement. Une cave. Immeuble impeccable. Très bon DPE. Local à vélos. Situé au pied du métro et des commerces.

Publiée le 03/12/2025 - maj le 06/12/2025 - Réf. agence : 86486856 - Réf Superimmo : ANVX1007KB
Vous rencontrez un problème sur le site ?
Merci de nous signaler le problème
Caractérisques
Prix de vente : 554 000 €Prix au m² : 8 147 € / m²
Charges prévisionnelles : 3 600 € / an

24 000 € TTC inclus dans le prix de vente.

68 m² - 3 pièces - 2 chambres11ème étage avec ascenseur
Orientation : EstVue dégagée
Année de construction : 1970Assainissement : tout à l'égout
Eau chaude collective : chaudière
Bilan énergétique Étiquette climat-énergie : C

Consommation d'énergie

Consommation
146 kWh/m².an
Logement très performantLogement extrêmement consommateur d'énergie

Émission de gaz à effet de serre

Peu d’émissions de CO2
A
B
C
D
E
F
G
29 kgeqCO2/m²/an
Émissions de CO2 très importante

Montant estimé des dépenses annuelles d’énergie pour un usage standard (année(s) de référence : 2021)
Minimum : 790 € / an
Maximum : 1 080 € / an

Diagnostics réalisés le 21/02/2025.

Intéressez par ce type de bien ?
Pour recevoir par email les annonces similaires
CRÉER UNE ALERTE
Localisation
DEMANDER L’ADRESSE
Cette annonce vous est proposée par :
01 53 21 02 05 Appelez de la part de Superimmo.com

Vos informations sont transmises directement à l'agence afin qu'elle traite votre demande. Voir notre charte des données personnelles.

Autres recherches

tous les appartements à rénover à Paris 19ème - tous les appartements de 3 pièces à Paris 19ème